EasyManua.ls Logo

Cooper Security 9750 - Control Unit PCB and Case

Cooper Security 9750
71 pages
Print Icon
To Next Page IconTo Next Page
To Next Page IconTo Next Page
To Previous Page IconTo Previous Page
To Previous Page IconTo Previous Page
Loading...
8 496478
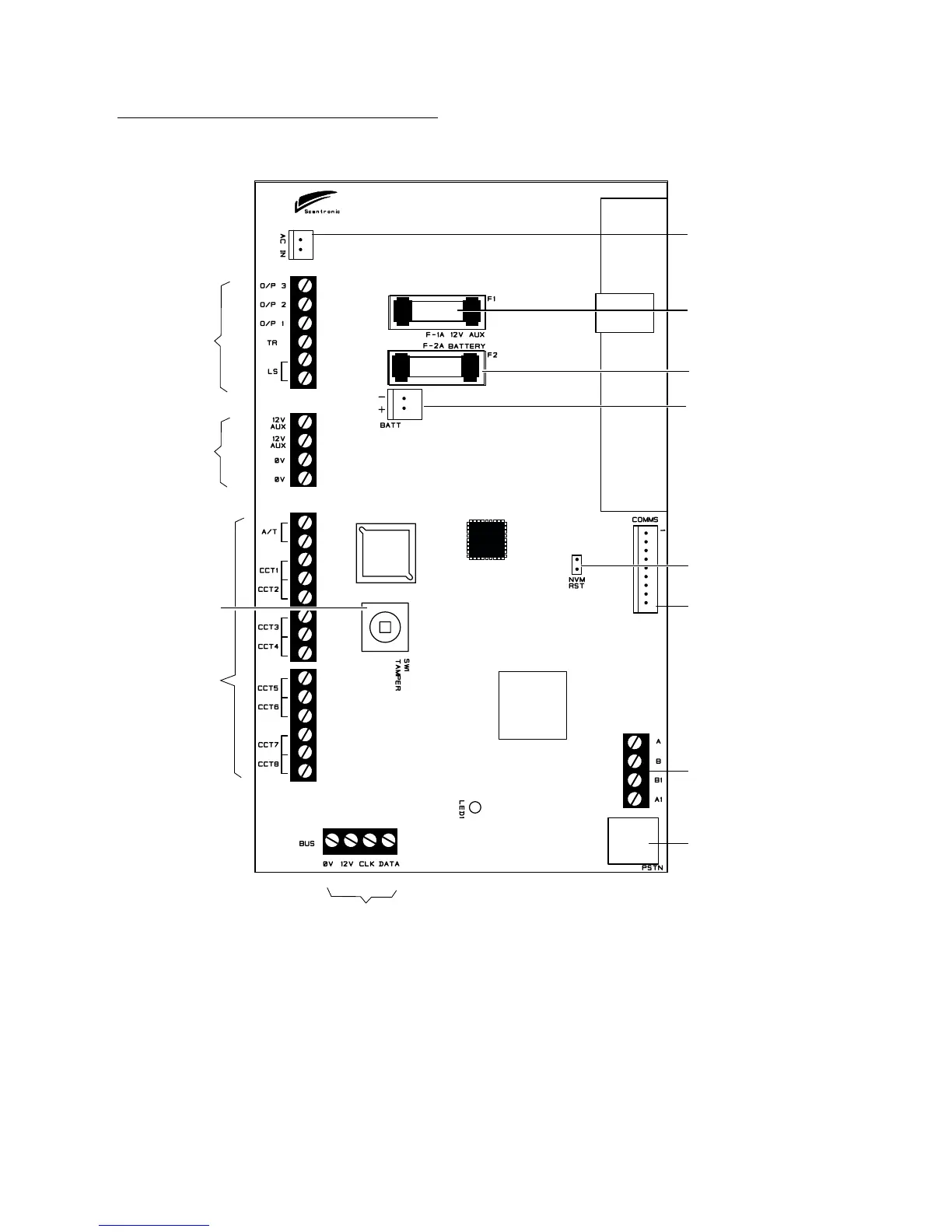
2. Technical Description
Control Unit PCB and Case
Figure 4 shows the layout of the control unit PCB.
Telephone line
for built-in
communicator
Battery connector
Reset pins
Battery fuse
12V Aux fuse
AC from transformer
Telephone
Connector for
built-in
communicator
Connector for
Plug-by
communicator
Tamper switch
Keypad and
expander bus
Outputs
Zones
Aux Power
Figure 4. Control Unit PCB Layout

Table of Contents

Related product manuals