EasyManua.ls Logo

Cornelius IDC 215 - Wiring Schematic

Cornelius IDC 215
32 pages
Print Icon
To Next Page IconTo Next Page
To Next Page IconTo Next Page
To Previous Page IconTo Previous Page
To Previous Page IconTo Previous Page
Loading...
IDC 2XX Service Manual
Publication Number: 621057403SER - 12 - © 2007-2019, Cornelius Inc.
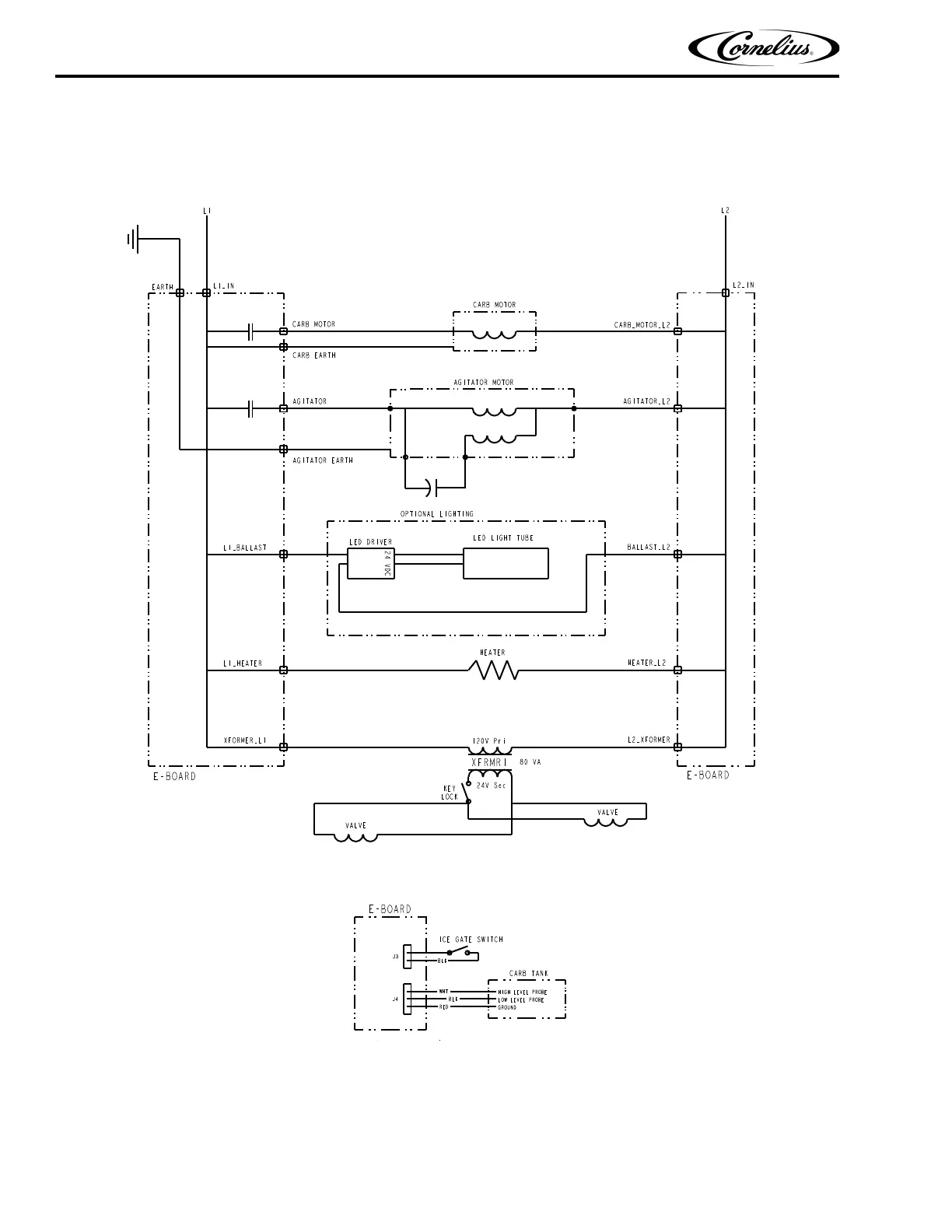
WIRING SCHEMATIC
BLK
CARB TANK
E-BOARD
J3
VALVE
KEY
LOC
VALVE
24V Sec
XFRMR2
VALVE
KEY
LOC
VALVE
24V Sec
XFRMR1
120V Pri
120V Pri
80 VA
80 VA
E-BOARD
XFORMER_L1
L1_HEATER
L1_BALLAST
E-BOARD
L2_XFORMER
HEATER_L2
BALLAST_L2
HEATER
BALLAST
STARTER
FLOURESCENT LIGHT
OPTIONAL LIGHTING
AGITATOR_L2
AGITATOR MOTOR
AGITATOR
AGITATOR EARTH
CARB MOTOR
CARB MOTOR
CARB_MOTOR_L2
CARB EARTH
L2_IN
L2
L1_1N
L1
EARTH
ICE GATE SWITCH
figure 9

Other manuals for Cornelius IDC 215

Related product manuals