EasyManua.ls Logo

COZY CDV155B - Operation and Settings; Lighting Instructions

COZY CDV155B
23 pages
Print Icon
To Next Page IconTo Next Page
To Next Page IconTo Next Page
To Previous Page IconTo Previous Page
To Previous Page IconTo Previous Page
Loading...
LIGHTING INSTRUCTIONS / MILLIVOLT (SELF GENERATING)
MODELS: CDV155B, CDV156B, CDV255B, CDV256B, CDV335B, CDV336B
FOR YOUR SAFETY READ BEFORE LIGHTING
WARNING: If you do not follow these instructions exactly, a fire or explosion may result causing
property damage, personal injury or loss of life.
A. This appliance has a pilot which must be lighted by hand.
When lighting the pilot, follow these instructions exactly.
B. BEFORE LIGHTING smell all around the appliance area
for gas. Be sure to smell next to the floor because some
gas is heavier than air and will settle on the floor.
WHAT TO DO IF YOU SMELL GAS:
Do not try to light any appliance.
Do not touch any electric switch; do not use any phone in
your building.
Immediately call your gas supplier from a neighbors
phone. Follow the gas suppliers instructions.
If you cannot reach your gas supplier, call the fire
department.
C. Use only your hand to push in or turn the gas control knob.
Never use tools. If the knob will not push in or turn by
hand, don’t try to repair it, call a qualified service
technician. Force or attempted repair may result in a fire
or explosion.
D. Do not use this appliance if any part has been under water.
Immediately call a qualified service technician to inspect
the appliance and to replace any part of the control system
and any gas control which has been under water.
LIGHTING INSTRUCTIONS
6. Wait five (5) minutes to clear out any gas. Then smell
for gas, including near the floor. If you smell gas,
STOP! Follow “B” in the safety information on the
safety label. If you don’t smell gas, go to the next step.
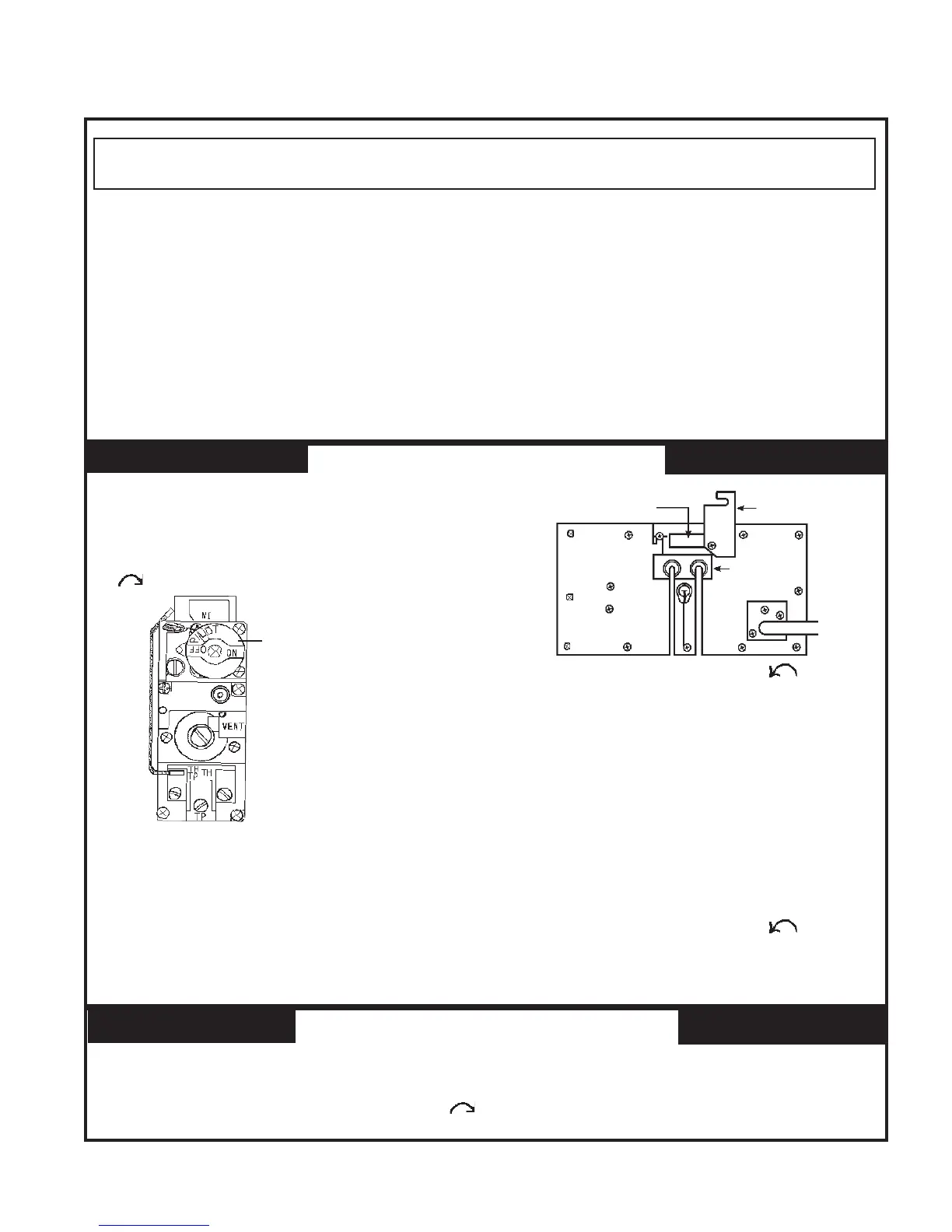
7. Open sight glass cover.
8. Locate red piezo ignitor button inside gas control
compartment. Locate pilot behind sight glass. (Follow
metal pilot tube from gas control).
TO TURN OFF GAS TO APPLIANCE
Gas Control Knob
NOTE: Knob can
not be turned from
“PILOT” to “OFF”
unless knob is
pushed in slightly.
Do not force.
Page 9
Sight Glass
Cover
Pilot
Sight Glass
9. Turn gas control knob counterclockwise to “PILOT”.
10. Push in gas control knob and hold in. Immediately begin a
series of pushing and releasing the red piezo ignitor button,
while observing the pilot through the sight glass. Continue
to spark until pilot is lit. Continue to hold the gas control
knob in for about one (1) minute after the pilot is lit. Release
the gas control knob and it will pop back up. Pilot should
remain lit. If pilot goes out, repeat steps 4 thru 9.
If knob does not pop up when released, STOP and
immediately call your service technician or gas supplier.
If the pilot will not stay lit after several tries, turn the gas
control knob to “OFF” and call your service technician or
gas supplier.
11. Close sight glass cover.
12. Turn gas control knob counterclockwise to “ON”.
13. Replace cabinet.
14. “Turn on all electric power to the appliance”.
15. Set thermostat to desired setting.
1. STOP! Read the information on the safety label.
2. Set thermostat to lowest setting.
3. “Turn off all electric power to the appliance”.
4. Remove cabinet.
5. Push in gas control knob slightly and turn clockwise
to “OFF”.
1. Set the thermostat to it’s lowest setting.
2. “Turn off all electric power to the appliance if service is to be performed”.
3. Open cabinet door.
4. Push in gas control knob slightly and turn clockwise to “OFF”. Do not force.
5. Close cabinet door.
P/N 91251 03/07

Related product manuals