EasyManua.ls Logo

Daikin FTX-N/U - Page 115

Daikin FTX-N/U
484 pages
Print Icon
To Next Page IconTo Next Page
To Next Page IconTo Next Page
To Previous Page IconTo Previous Page
To Previous Page IconTo Previous Page
Loading...
FTX-N/U, FVXS-N, FDMQ-R Series EDUS091558E
113
3P500432-1
2. Items to be checked at time of delivery
Items to be checked Check
Haveyoucarriedouteldsetting?(ifnecessary)
Aretheelectricalwiringboxcover,airlter,suction
grilleattached?
Does the cool air discharge during the COOL
operation and the warm air discharge during the
HEAToperation?Doestheindoorunitmakes
unpleasantsoundofairdischarge?
Did you explain about operations while showing the
operationmanualtoyouruser?
Have you explained the description of COOL, HEAT,
DRY and AUTOMATIC (cooling/heating) given in the
operationmanualtotheuser?
If you set the fan speed at thermostat OFF, did you
explain the set fan speed to the user.
Did you hand the operation manual over to the
user?
Have you checked that there is no generation
of abnormal noise (i.e., noise resulting from
contaminationormissingparts)?
Is the printed circuit board switch not on the
emergency(EMG.)side?
The switch is factory set to the normal (NORM.) side.
If an optional accessory is in use, did you check the
operationoftheoptionalaccessoryandmakeeld
settingsasneeded?
Have you explained failure examples of
3. CHOOSING AN INSTALLATION SITE?
Items to be checked at time of delivery
Test items Check
Did you explain about operations while showing
theoperationmanualtotheuser?
Did you hand the operation manual over to the
user?
Points for explanation about operations
The items with WARNING and CAUTION marks in the
operation manual are the items pertaining to possibilities for
bodily injury and material damage in addition to the general
usage of the product. Accordingly, it is necessary that you
make a full explanation about the described contents and
also ask the users to read the operation manual.
Note to the installer
Be sure to instruct customers how to properly operate the
unit (especially operating different functions, and adjusting
the temperature) by having them carry out operations while
looking at the manual.
3. CHOOSING AN INSTALLATION SITE
Hold the hangers at 4 locations to move the indoor unit
when unpacking or after unpacked, and do not apply force
tothepiping(refrigerantanddrain)andairoutletange.
If the temperature and humidity in the ceiling is likely to
exceed 86°F (30°C), RH80%, use the additional insulation
stick to the indoor unit.
Use the insulation such as glass wool or polyethylene that
has thickness of 3/8 inch (10mm) or more. However, keep
the insulated outside dimension smaller than the ceiling
opening so that the unit may go through the opening at
installation.
(1) Select the installation location that meets the following
conditions and get approval of the user.
Where the cool and warm air spreads evenly in the room.
Where there are no obstacles in the air passage.
Where drainage can be ensured.
Where the ceiling’s lower surface is not remarkably inclined.
Wherethereissufcientstrengthtowithstandthemass
oftheindoorunit.(Ifthestrengthisinsufcient,the
indoor unit may vibrate and get in contact with the ceiling
and generate unpleasant chattering noise.)
Whereaspacesufcientforinstallationandservicecan
be ensured. (Refer to Fig. 1 and Fig. 2)
Where the piping length between the indoor and the
outdoor units is ensured within the allowable length.
(Refer to the installation manual attached to the outdoor unit.)
Wherethereisnoriskofammablegasleak.
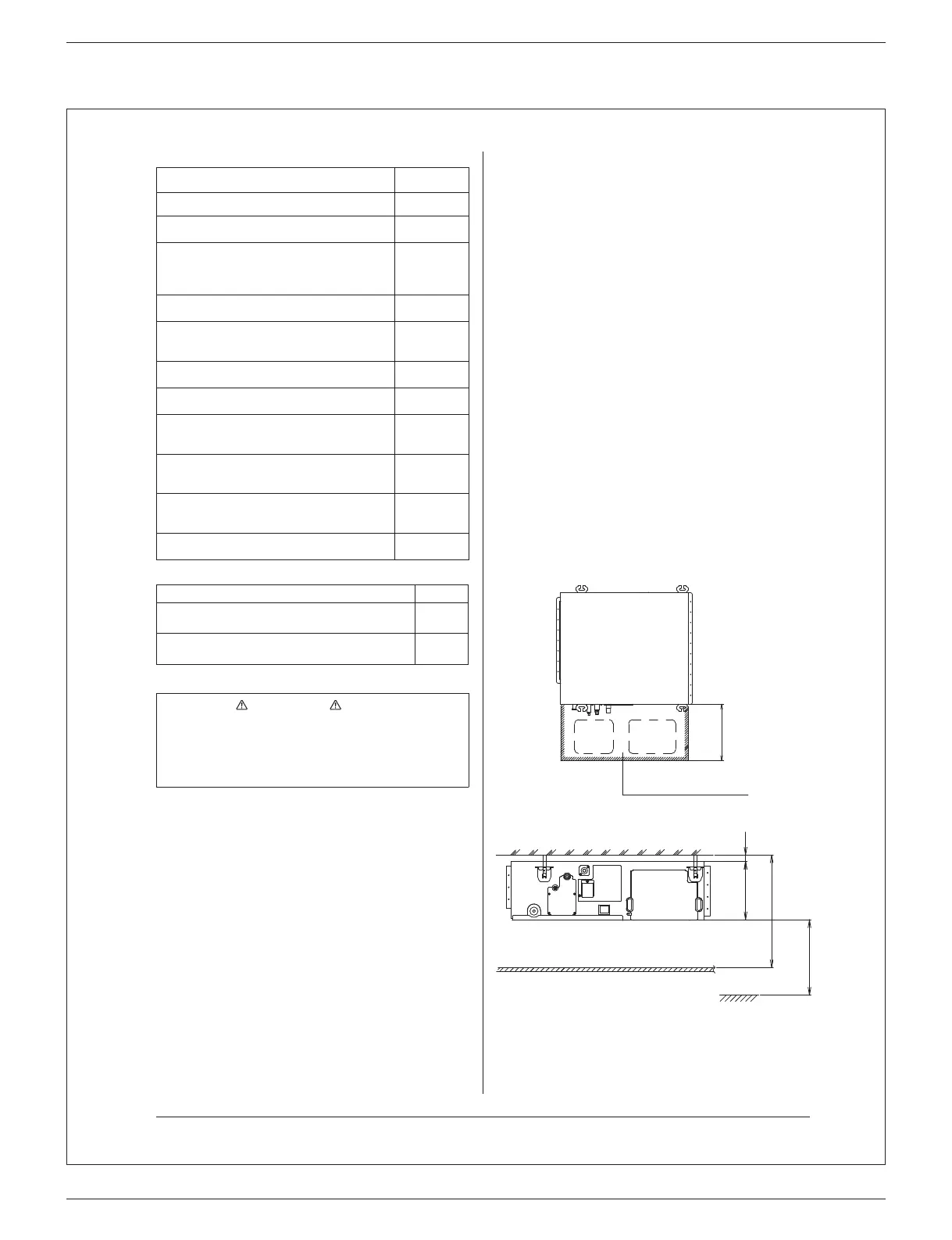
[ Installation Space Requirements ]
Maintenance
space for
drain pan
Maintenance
space for
electrical
components
Secure the maintenance
space for the drain pan and
electrical components.
17-11/16
(450)
or more
Fig. 1 unit: inch (mm)
Floor
Ceiling
100 (2500)
or more
H2 or more*
13/16
(20)
or more
H1=9-5/8
(245)*
Fig. 2 unit: inch (mm)
* Dimension H1 indicates the product height.
*Secureadownwardslopeofatleast1/100speciedin
7. DRAIN PIPING WORK and determine dimension H2.
4
01_EN_3P500432-1.indd 4 10/24/2017 18:32:30

Table of Contents

Related product manuals