EasyManua.ls Logo

Daikin FTX-N/U - Outdoor Unit

Daikin FTX-N/U
484 pages
Print Icon
To Next Page IconTo Next Page
To Next Page IconTo Next Page
To Previous Page IconTo Previous Page
To Previous Page IconTo Previous Page
Loading...
24
FTX-N/U, FVXS-N, FDMQ-R Series EDUS091558E
C: 3D122861
RXL12QMVJU9
3.15A3.15A E1HS1T
WHT BLK BLKBLK WHT
FU4 FU5
OPTION
WHT
IPM1
Z1C
X1M
DB1
L1R
MRM10
HR2
HL1
HR1
BLK
BRN
1L1
ORG
1
WHT
ZF
2
2L2
HN1
V2
C400
RED
3
3
INDOOR
S
V3
L1
C405
MR30
V150
L2
GRN/YLW
UW V
SA1
Z2C
E1
MRCW
PS
E2
S90S20 S40
GRN
FIELD WIRING
5 11
6
1 712 1 3
GRN
OUTDOOR
S71
S30
S80
PCB1
Z3C
RED
RED
BLU
ORG
RED
BLK
BLK
RED
BLK
BLK
BLU
ORG
BLK
BLK
BRN
WHT
BLK
WHT
BLK
YLW
BLU
RED
YLW
Y1S
V
U
M
W
MS
Q1L
Y1E
M1F M1C
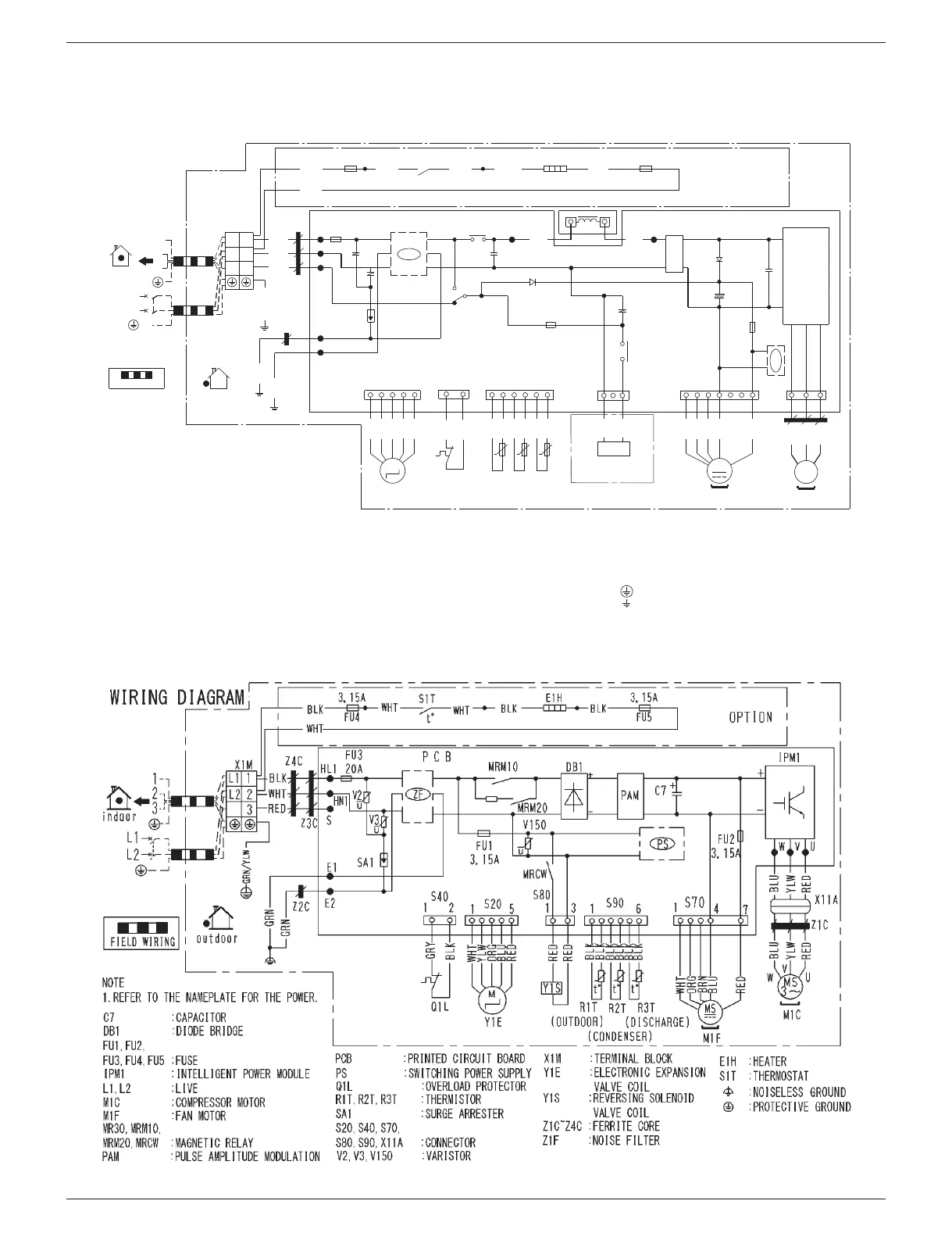
WIRING DIAGRAM
POWER SUPPLY
FU3
20A
~
~
-
-
+
+
+
MS
3
~
IN CASE OF
HEAT PUMP TYPE
R1T
(OUTDOOR)
R2T
(CONDENSER)
R3T
(DISCHARGE)
NOTE
1. REFER TO THE NAMEPLATE FOR THE POWER
REQUIREMENTS.
C400, C405
DB1
FU1, FU2, FU3, FU4, FU5
IPM1
L1, L2
L1R
M1C
M1F
MR30, MRM10, MRCW
PCB1
PS
: CAPACITOR
: DIODE BRIDGE
: FUSE
: INTELLIGENT POWER MODULE
: LIVE
: REACTOR
: COMPRESSOR MOTOR
: FAN MOTOR
: MAGNETIC RELAY
: PRINTED CIRCUIT BOARD
: SWITCHING POWER SUPPLY
Q1L
R1T, R2T, R3T
S20, S30, S40,
S71, S80, S90
SA1
V2, V3, V150
X1M
: OVERLOAD PROTECTOR
: THERMISTOR
: CONNECTOR
: SURGE ARRESTER
: VARISTOR
: TERMINAL BLOCK
Y1E
Y1S
Z1C~Z3C
ZF
E1H
S1T
: ELECTRONIC EXPANSION VALVE COIL
: REVERSING SOLENOID VALVE COIL
: FERRITE CORE
: NOISE FILTER
: HEATER
: THERMOSTAT
: GROUND
: GROUND
FU2
3.15A
FU1
3.15A
C: 3D099947
RXL09QMVJU
5.2 Outdoor Unit

Table of Contents

Related product manuals