EasyManua.ls Logo

Daikin FTX-N/U - Page 27

Daikin FTX-N/U
484 pages
Print Icon
To Next Page IconTo Next Page
To Next Page IconTo Next Page
To Previous Page IconTo Previous Page
To Previous Page IconTo Previous Page
Loading...
FTX-N/U, FVXS-N, FDMQ-R Series EDUS091558E
25
C:3D122866
RXL18/24UMVJUA
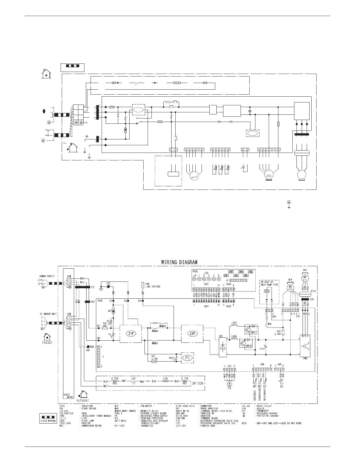
WIRING DIAGRAM
FIELD WIRING
3.15A 3.15AS1T E1H
INDOOR
WHT BLKBLKBLK WHT
FU4 FU5
OPTION
WHT
MRM20
IPM1
Z3C
X1M
DB1
TO INDOOR UNIT
HL1
~
BLK
+
+
1L1
1
+
ZF
~
MRM10
HN1
PAM
C7
-
WHT
-
2
L2 2
-
S
V2
V1
RED
3
3
V3
MR30
W V U
L1
SA1
PS
GRN/YLW
Z1C
Z2C
L2
E1
MRCW
BLU
RED
YLW
E2
S40 S70S20 S90S80
GRN
741
POWER SUPPLY
1 1
2
3 6 6
1
1
X11A
PCB
GRN
OUTDOOR
BLK
BLK
BLU
ORG
RED
BLK
BLK
BLK
BLK
BLK
BLK
RED
RED
RED
BRN
BLU
ORG
WHT
WHT
YLW
NOTE
1. REFER TO THE NAMEPLATE FOR THE POWER REQUIREMENTS.
V
UW
MS
M
Y1S
Q1L
Y1E
M1C
M1F
FU3
30A
FU1
3.15A
FU2
3.15A
MS
3
~
R3T
(DISCHARGE)
R1T
(OUTDOOR)
R2T
(CONDENSER)
IN CASE OF
HEAT PUMP TYPE
C7
DB1
FU1, FU2, FU3, FU4, FU5
IPM1
L1, L2
M1C
M1F
MRM10, MRM20,
MR30, MRCW
PAM
PCB
: CAPACITOR
: DIODE BRIDGE
: FUSE
: INTELLIGENT POWER MODULE
: LIVE
: COMPRESSOR MOTOR
: FAN MOTOR
: MAGNETIC RELAY
: PULSE AMPLITUDE MODULATION
: PRINTED CIRCUIT BOARD
PS
Q1L
R1T, R2T, R3T
S20, S40, S70,
S80, S90, X11A
SA1
V1, V2, V3
X1M
Y1E
Y1S
Z1C, Z2C, Z3C
ZF
: SWITCHING POWER SUPPLY
: OVERLOAD PROTECTOR
: THERMISTOR
: CONNECTOR
: SURGE ARRESTER
: VARISTOR
: TERMINAL BLOCK
: ELECTRONIC EXPANSION VALVE COIL
: REVERSING SOLENOID VALVE COIL
: FERRITE CORE
: NOISE FILTER
: HEATER
: THERMOSTAT
: GROUND
: GROUND
E1H
S1T
C: 3D099952
RXL15QMVJUA

Table of Contents

Related product manuals