EasyManua.ls Logo

Daikin FTX-N/U - Page 31

Daikin FTX-N/U
484 pages
Print Icon
To Next Page IconTo Next Page
To Next Page IconTo Next Page
To Previous Page IconTo Previous Page
To Previous Page IconTo Previous Page
Loading...
FTX-N/U, FVXS-N, FDMQ-R Series EDUS091558E
29
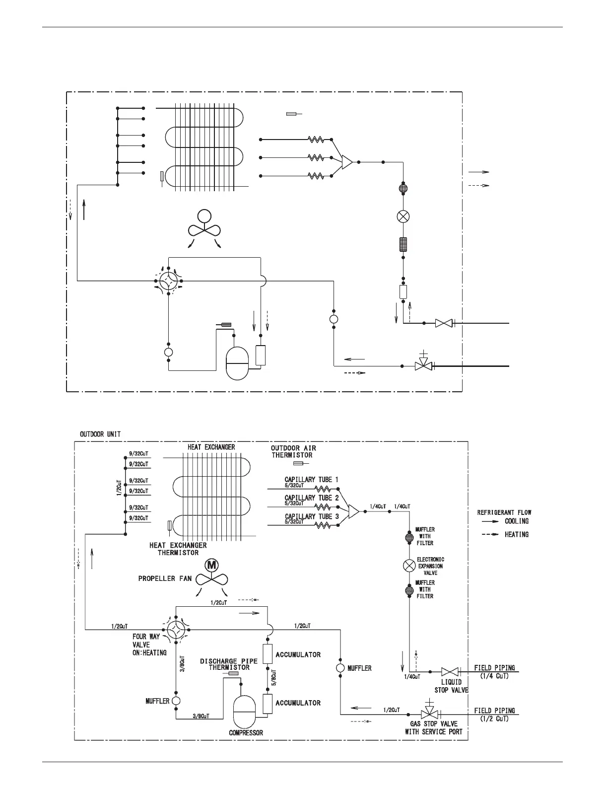
3D123368
RXL18UMVJUA
OUTDOOR UNIT
HEAT EXCHANGER
9/32 CuT
9/32 CuT
CAPILLARY TUBE
9/32 CuT
5/32 CuT
9/32 CuT
1/2 CuT
1/4 CuT1/4 CuT
9/32 CuT
REFRIGERANT FLOW
9/32 CuT
COOLING
HEATING
M
PROPELLER FAN
STRAINER
1/2 CuT
1/4 CuT
1/2 CuT1/2 CuT
MUFFLER
5/16 CuT
1/4 CuT
MUFFLER
1/2 CuT
ACCUMULATOR
5/16 CuT
COMPRESSOR
HEAT EXCHANGER
THERMISTOR
DISCHARGE PIPE
THERMISTOR
GAS STOP VALVE
WITH SERVICE PORT
LIQUID
STOP VALVE
OUTDOOR AIR
THERMISTOR
MUFFLER
WITH
FILTER
ELECTRONIC
EXPANSION
VALVE
LIQUID
RECEIVER
FIELD PIPING
(1/4 CuT)
FIELD PIPING
(1/2 CuT)
FOUR WAY
VALVE
ON: HEATING
3D100007
RXL15QMVJUA

Table of Contents

Related product manuals