EasyManua.ls Logo

Daikin LXE10E-A4 - Internal Component Identification

Daikin LXE10E-A4
162 pages
Print Icon
To Next Page IconTo Next Page
To Next Page IconTo Next Page
To Previous Page IconTo Previous Page
To Previous Page IconTo Previous Page
Loading...
2-4
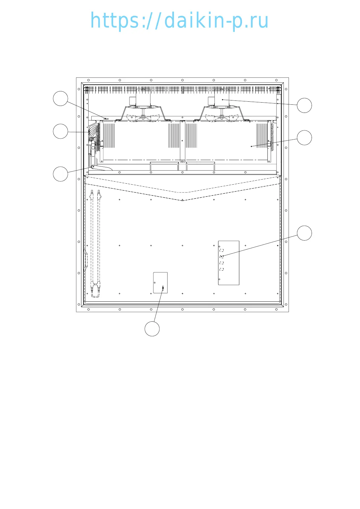
2.2.2 Inside
LXE10E
q Evaporator fan motor (EFM)
w Evaporator
e Supply air temperature sensor (SS)
Data recorder supply air temperature sensor (DSS)
Recorder supply air temperature sensor (RSS, optional)
r Evaporator outlet pipe temperature sensor (EOS)
t Evaporator inlet pipe temperature sensor (EIS)
y Return air temperature sensor (RS)
Data recorder return air temperature sensor (DRS, optional)
Recorder return air temperature sensor (DRS, optional)
u USDA receptacle (optional)
https://daikin-p.ru

Table of Contents