EasyManua.ls Logo

Daikin LXE10E-A4 - Sensor Indication Mode

Daikin LXE10E-A4
162 pages
Print Icon
To Next Page IconTo Next Page
To Next Page IconTo Next Page
To Previous Page IconTo Previous Page
To Previous Page IconTo Previous Page
Loading...
6. SENSOR INDICATION MODE
Each sensor value, the modulating valve (MV) opening, and the electronic expansion valve (EV)
opening can be checked. The following items are displayed:
High pressure (HPT), low pressure (LPT), voltage (PT1), total current (CT1), compressor current (CT2),
ambient temperature (AMBS), evaporator inlet temperature (EIS), evaporator outlet temperature (EOS),
discharge gas temperature (DCHS), suction gas temperature (SGS), suction modulating valve opening,
electronic expansion valve opening, supply air temperature (SS) (during PTI only), return air
temperature (RS) (during PTI only), pulp temperature (USDA#1, UADA#2, USDA#3) (optional), cargo
temperature (CTS) (optional), supply air temperature for data recorder (DSS) (optional), return air
temperature for data recorder (DRS) (optional).
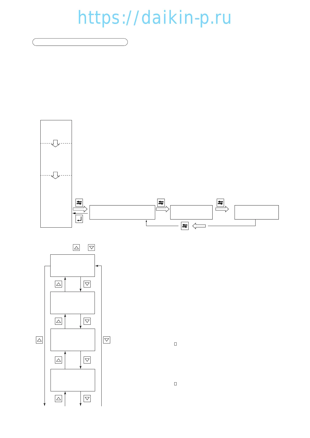
<Mode selection procedure>
3-15
<Operation procedure>
Whenever the or key is pressed, the display changes.
LED: The control temperature is displayed.
LCD: The value of high pressure transducer is displayed.
The display reads: "HPT ".
(In kPa.)
LED: The control temperature is displayed.
LCD: The value of the low pressure transducer is displayed.
The display reads: "LPT ".
(In kPa.)
LED: The control temperature is displayed.
LCD: The value of voltage is displayed.
The display reads: " PT V".
(In Volts.)
LED: The control temperature is displayed.
LCD: The value of total running current is displayed.
The display reads: " CT A".
(In Ampere.)
1
1
All indication
Lights on
(for 3 sec.)
Starting
Preparation
(for 18 sec.)
1
Current
indication
(Operation state)
6 Sensor Indication
or no key operation for 5 min.
7 Temperature
Record Scroll
8 Alarm
Record Scroll
HIGH PRESSURE
TRANSDUCER
(HPT)
LOW PRESSURE
TRANSDUCER
(LPT)
CURRENT
SENSOR-1
(CT1)
VOLTAGE SENSOR
(PT)
https://daikin-p.ru

Table of Contents