EasyManua.ls Logo

Daikin MPS050F - Page 8

Daikin MPS050F
132 pages
Print Icon
To Next Page IconTo Next Page
To Next Page IconTo Next Page
To Previous Page IconTo Previous Page
To Previous Page IconTo Previous Page
Loading...
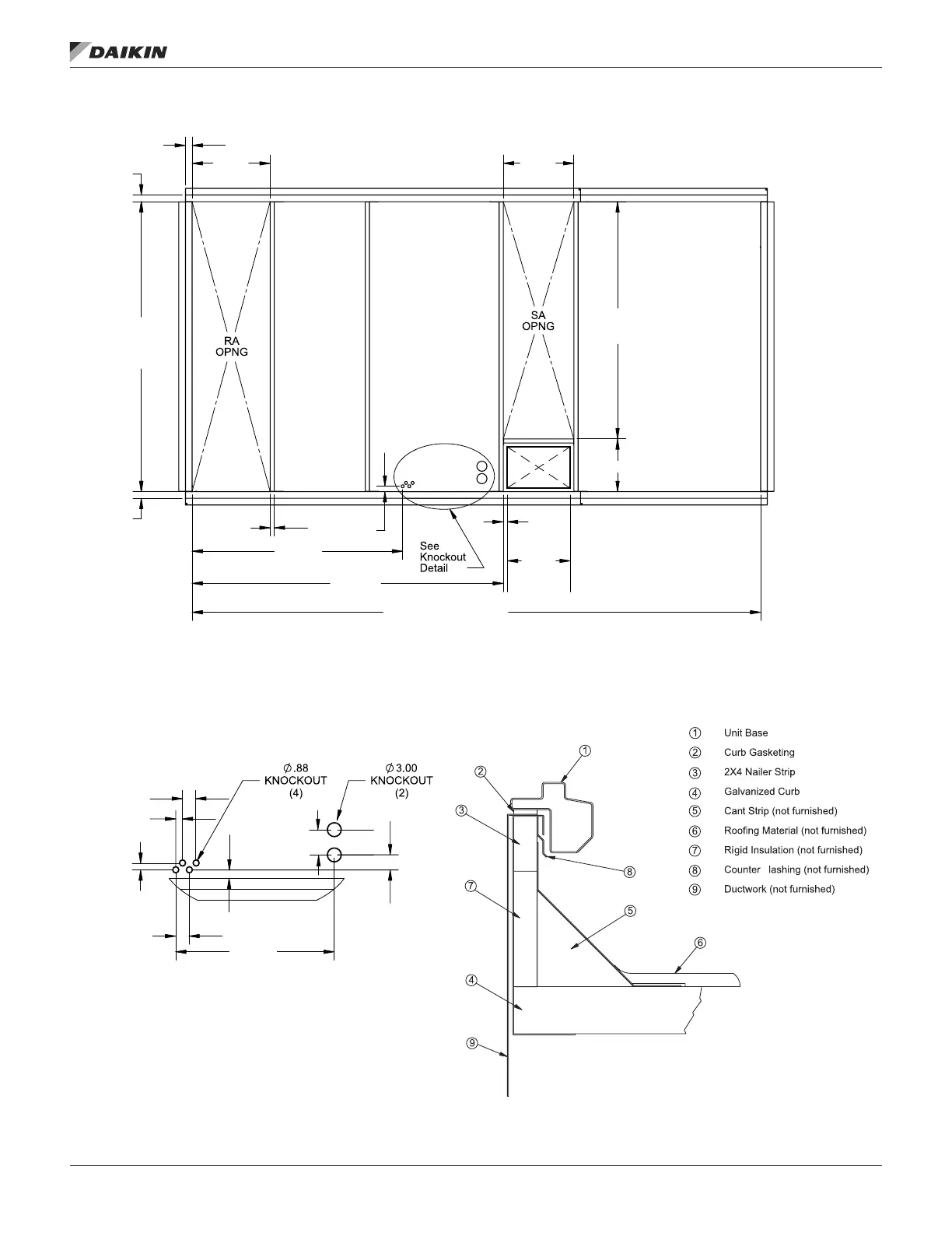
Figure 4: Roof Curb Layout—MPS 026G – 035F
23.50
[597 mm]
2.00
[51 mm]
2.00
[51 mm]
21.25
[540 mm]
71.38
[1813 mm]
15.87
[403 mm]
87.25
[2216 mm]
(INSIDE CURB)
1.25
[32 mm] TYP
1.63
[41 mm]
93.70
[2380 mm]
171.18 (INSIDE CURB)
[4348 mm]
63.69
[1610 mm]
2.00
[51 mm]
2.00
[51 mm]
1.00
[26 mm]
1.00
[26 mm]
2.00
[51 mm]
3.75
[95 mm]
PLAN VIEW
23.86
[606 mm]
CURB CROSS SECTION
KNOCKOUT DETAIL
F
HOT WATER
ONLY
CHASE
1.00
[25 mm]
19.00
[483 mm]
0.38
[9.7 mm]
0.38
[9.7 mm]
IM 1058-8 • MAVERICK II ROOFTOP SYSTEMS 8 www.DaikinApplied.com
meChanICal InsTallaTIon

Table of Contents

Related product manuals