EasyManua.ls Logo

Daikin MPS050F - Page 9

Daikin MPS050F
132 pages
Print Icon
To Next Page IconTo Next Page
To Next Page IconTo Next Page
To Previous Page IconTo Previous Page
To Previous Page IconTo Previous Page
Loading...
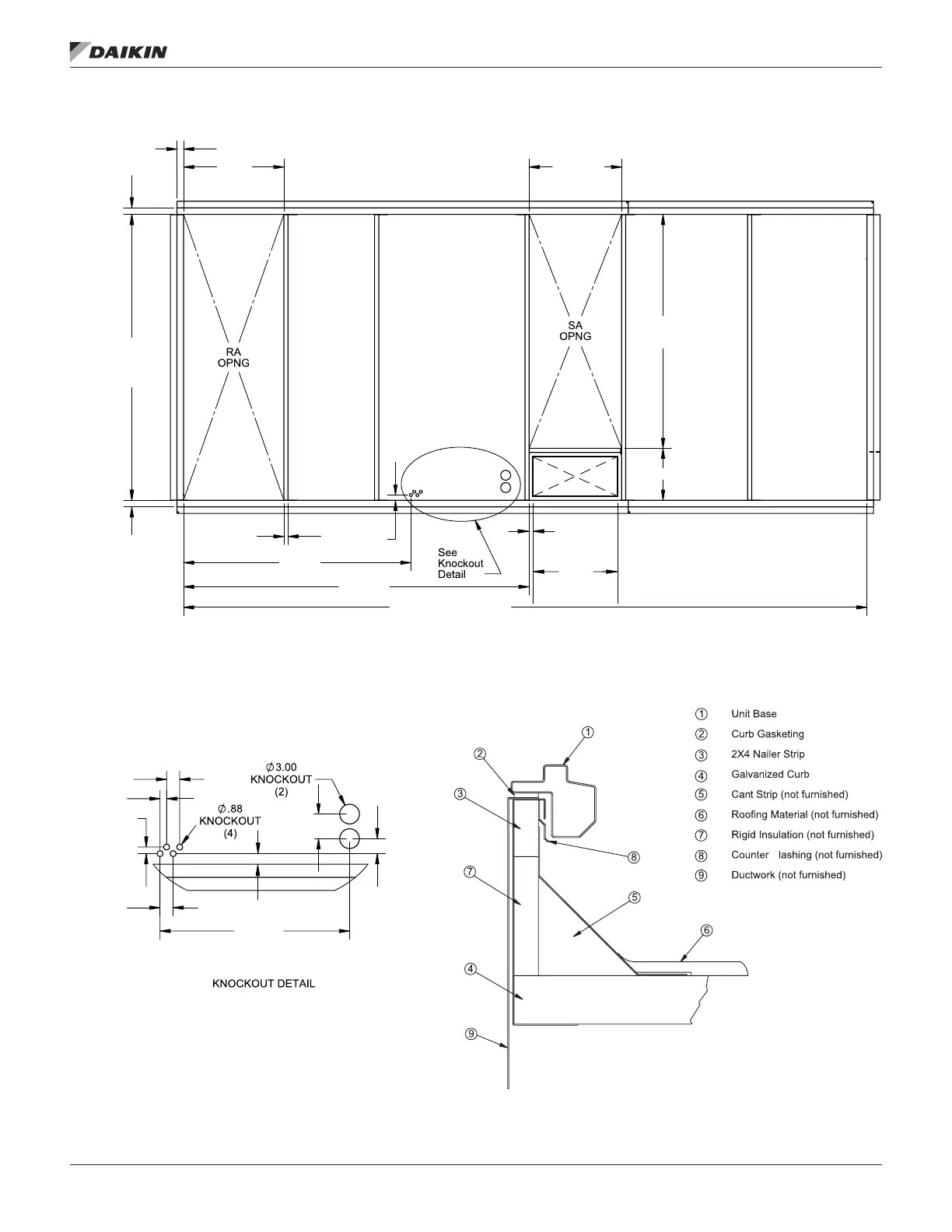
Figure 5: Roof Curb Layout—MPS 040F – 050F
CURB CROSS SECTION
2.00
[51 mm]
2.00
[51 mm]
30.63
[778 mm]
87.25
[2216 mm]
(INSIDE CURB)
2.00
[51 mm]
1.25 TYP
[32 mm]
1.63
[41 mm]
69.39
[1763 mm]
105.45
[2678 mm]
208.57 (INSIDE CURB)
[5298 mm]
71.38
[1813 mm]
15.87
[403 mm]
28.25
[718 mm]
2.00
[51 mm]
2.00
[51 mm]
1.00
[25 mm]
3.75
[95 mm]
28.92
[735 mm]
PLAN VIEW
F
1.00
[25 mm]
26.00
[660 mm]
HOT WATER
ONLY
CHASE
0.38
[9.7 mm]
0.38
[9.7 mm]
meChanICal InsTallaTIon
www.DaikinApplied.com 9 IM 1058-8 • MAVERICK II ROOFTOP SYSTEMS

Table of Contents

Related product manuals