EasyManua.ls Logo

Daikin RY50G - Page 85

Daikin RY50G
244 pages
Print Icon
To Next Page IconTo Next Page
To Next Page IconTo Next Page
To Previous Page IconTo Previous Page
To Previous Page IconTo Previous Page
Loading...
Function Details Si-71A
74 Explanation of Function Operation
Hot start after defrosting operation
Fan Stop
<After defrost completion>
OR
&
40 sec after defrost completion
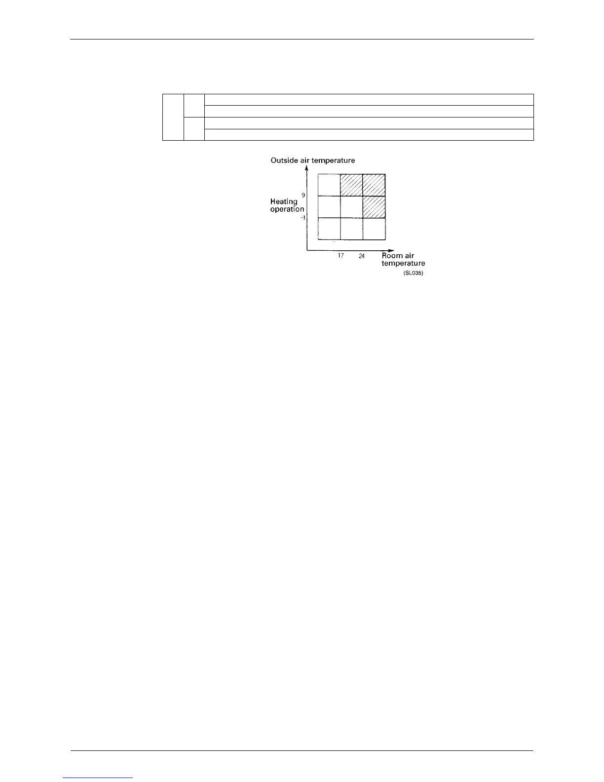
20 sec after defrost completion in case ambient temp. > 9°C and indoor suction air temp. > 24°C
&
Before heat exchanger temp. > 36°C
Heat exchanger temp. > 18°C in case of shaded area.

Table of Contents

Related product manuals