EasyManua.ls Logo

Daikin VRV III - Page 342

Daikin VRV III
455 pages
Print Icon
To Next Page IconTo Next Page
To Next Page IconTo Next Page
To Previous Page IconTo Previous Page
To Previous Page IconTo Previous Page
Loading...
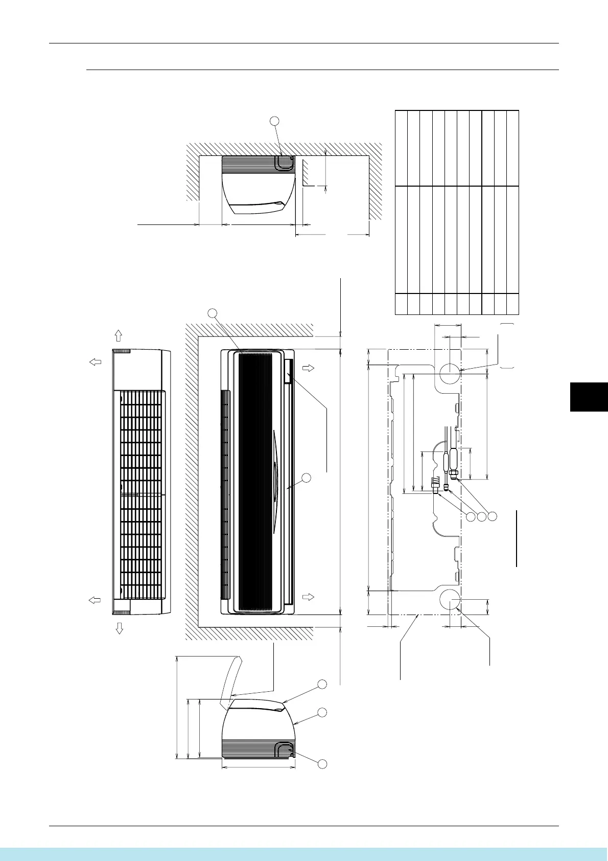
ED34-862 Dimensions
FXAQ-MA 337
10
FXAQ63MA
in high spaces
For installation
(Requred space)
(Required space)
(Filter part)
Wiring intake
Piping and
(Requred space)
(Required space)
Notes:
Mounting location
Piping direction
2. In case of using wireless remote
controller, this position will be
a signal receiver. Refer to the
drawing of wireless remote contorller
in detail.
2500 OR MORE
Piping direction
1. Location of unit's of Name Plate:
Right side surface of casing
(Filter part)
Piping direction
4
Approx. 400
60
5
30 or more
Approx. 475
Name plate Note) 2
98
7
50 or more
9
Dimensions for
full open
front panel
3
6
8
155
Approx. 460
90 or more
232
2
894
1050
230
44
125
104 52
50 or more
1
120 or less
105
Approx. 415
φ80 hole
Outside line
290
φ80 hole
14.544
9
8
7
6
5
4
3
2
1
No.
Left side pipe connection hole
Right side pipe connection hole
Grounding terminal
Drain hose
Liquid pipe
Gas pipe
Air outlet
Front grill
Front panel
Name
M4
VP13 (External dia. φ18)
φ9.5 Flare connection
φ15.9 Flare connection
Description
Unit (mm)
3D038541B
Все каталоги и инструкции здесь: http://splitoff.ru/tehn-doc.html

Table of Contents

Other manuals for Daikin VRV III

Related product manuals