EasyManua.ls Logo

Daikin VRV III - Page 375

Daikin VRV III
455 pages
Print Icon
To Next Page IconTo Next Page
To Next Page IconTo Next Page
To Previous Page IconTo Previous Page
To Previous Page IconTo Previous Page
Loading...
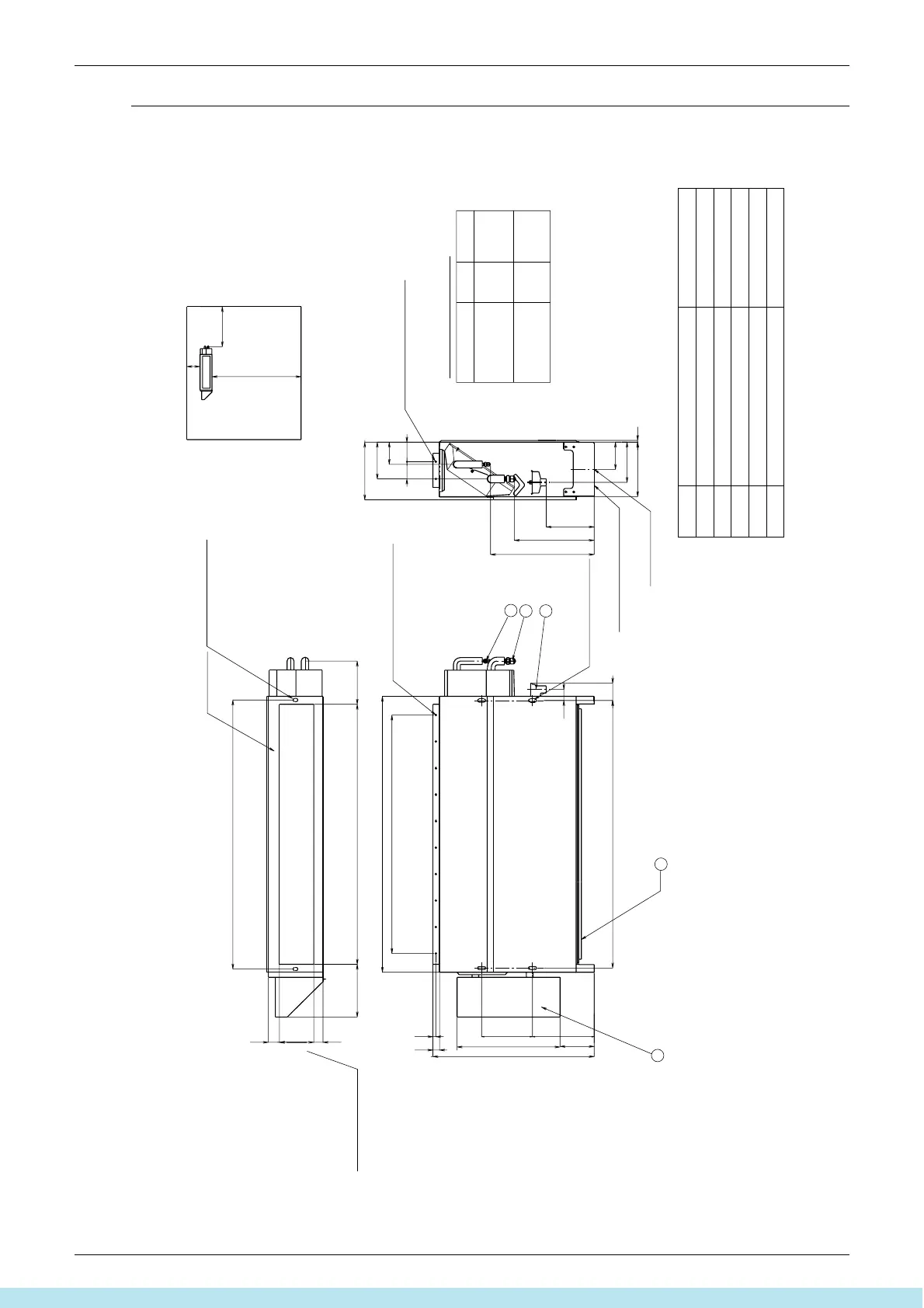
Dimensions ED34-862
370 FXLQ-MA / FXNQ-MA
FXNQ50MA
FXNQ63MA
2-12×18 SLOT HOLE
(DISCHARGE FLANGE)
1000 OR MORE
20 OR MORE
150 OR MORE
4×M6
4-12×30 SLOT HOLE
HOLE FOR FIXING
TO THE FLOOR
HOLE FOR FIXING
TO THE FLOOR
REQUIRED INSTALLATION SPACE
LEVEL ADJUSTING SCREW
AS STANDARD ACCESSORY
FRONT FACE
(DISCHARGE FLANGE)
TOTAL ON FRONT & REAR
HOLE FOR REAR MOUNTING
TOTAL ON RIGHT & LEFT
Piping size (Field supply)
5
4
206
139
74
9×100=900
1016
1
163
13035
10-φ4.7 HOLE
129
65
3
233
1010
301
192
982
181
25
152
2
103
65
84
389
391
42
2-φ4.7 HOLE
7
TOP PLATE
42
11
218
199
1040
609
Indoor unit
FXNQ50M (A) VE
FXNP56MMVC
FJNP56MMVC
FXNQ63M (A) VE
FXNP71MMVC
FJNP71MMVC
Gas side Liquid side
NUMBER
1
2
3
4
5
NAME
LIQUID PIPE CONNECTION PORT
GAS PIPE CONNECTION
DRAIN PIPE CONNECTION
SWITCH BOX
AIR FILTER
DESCRIPTION
FLARE CONNECTION
FLARE CONNECTION
O. D. 21
1. LOCATION OF UNIT'S NAME PLATE:
THE RIGHT LOWER CORNER OF FRONT PLATE.
φ12.7
φ6.4
φ15.9 φ15.9
Unit (mm)
3D038865C
Все каталоги и инструкции здесь: http://splitoff.ru/tehn-doc.html

Table of Contents

Other manuals for Daikin VRV III

Related product manuals