EasyManua.ls Logo

Daikin VRV III - Page 429

Daikin VRV III
455 pages
Print Icon
To Next Page IconTo Next Page
To Next Page IconTo Next Page
To Previous Page IconTo Previous Page
To Previous Page IconTo Previous Page
Loading...
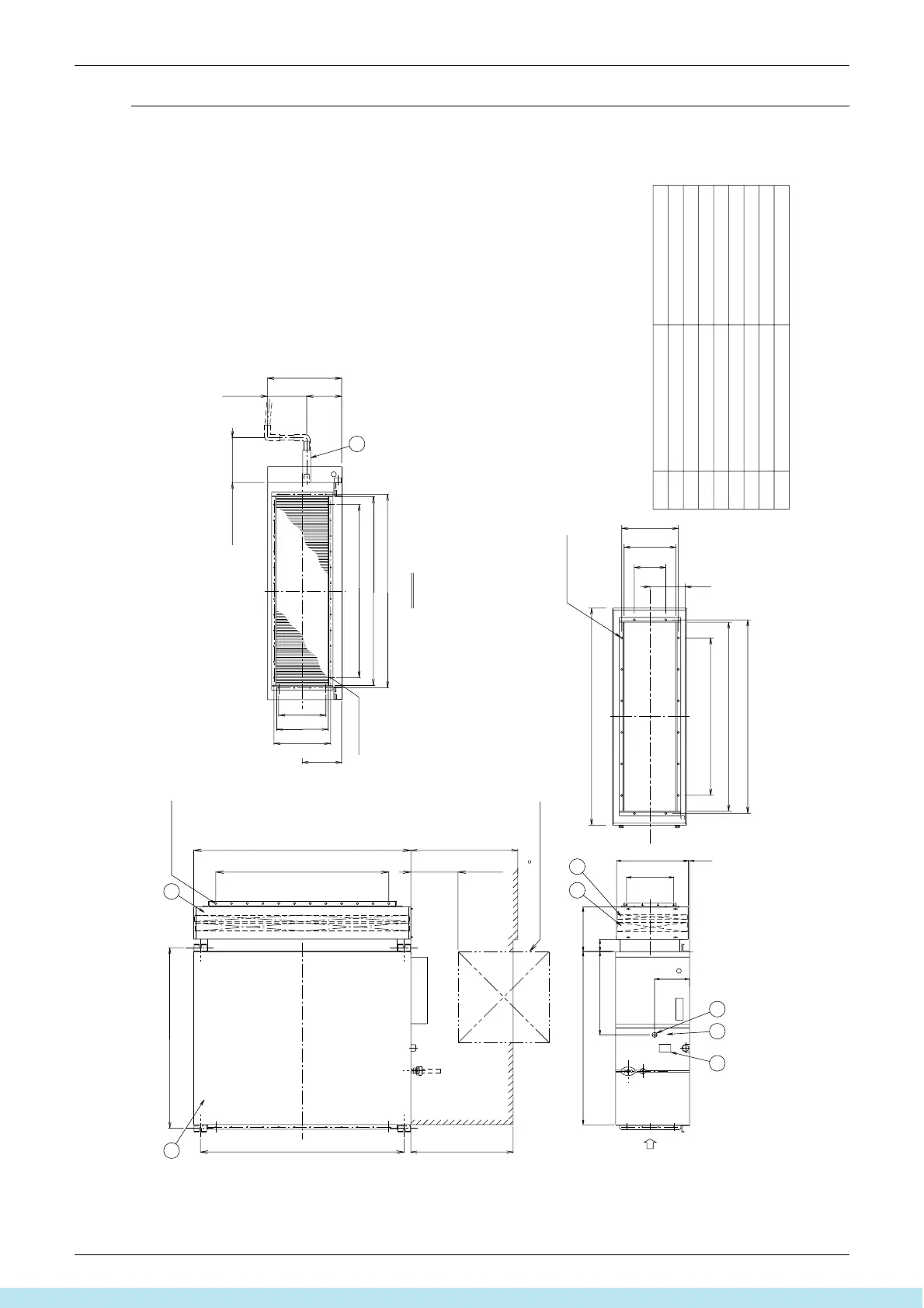
Dimensions ED34-862
424 FXMQ-MF
FXMQ200MFV1
FXMQ250MFV1
Approx.
300
VP25 (O. D φ32, I. D φ25)
1
2
3
4
5
6
7
8
690 or more
360
A
Drain hose
330
1148
A View
250
Attached to Drain pump kit
(Service space)
3 × 100=300
(All around)
(Service space)
650 or more
Inspection hole 600 or more
11 × 100=1100
285
Water supply port
200
3 × 100=300
529
1100
5
8
300 or less
(0~250)
1380
79
1230
330
4
223
7
1200
1
8
2
6
456
1380
1296
5 × 200=1000
360
3
222
VRV D.P. Unit C. duct type
Filter chamber
Number
Builted-in
High-eficiency filter
Drain pipe connection (drain pump kit)
Long-life replacement filter
Drain pump kit
Description
Name
32 - φ4.7 HOLE
(All around)
222~472
222
32 - φ7 hole
11
×
100=1100
1200
1230
16 - φ8 HOLE
(All around)
Unit (mm)
3D046154
Все каталоги и инструкции здесь: http://splitoff.ru/tehn-doc.html

Table of Contents

Other manuals for Daikin VRV III

Related product manuals