EasyManua.ls Logo

Daikin WGZ030DW - Unit Components Overview

Daikin WGZ030DW
64 pages
To Next Page IconTo Next Page
To Next Page IconTo Next Page
To Previous Page IconTo Previous Page
To Previous Page IconTo Previous Page
Loading...
20 IM 1131-2
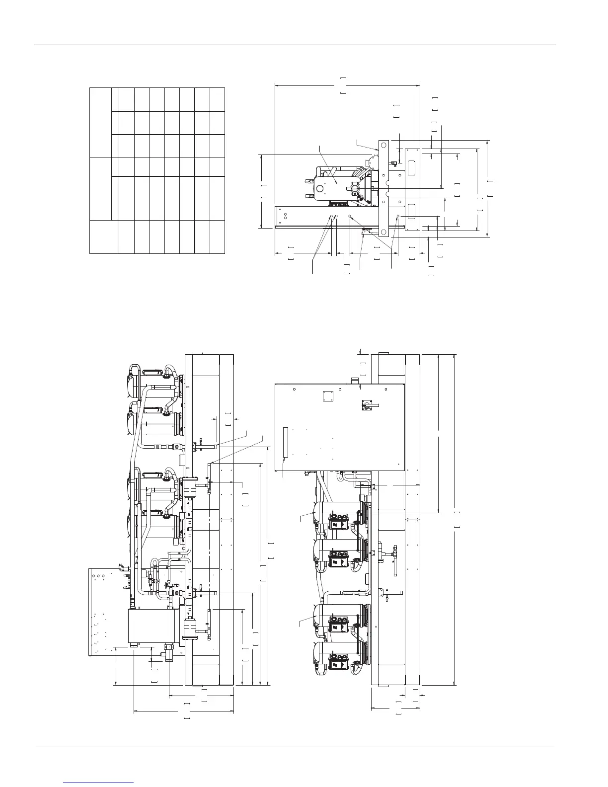
Dimensions - Condenserless
Dimensions - Co ndenserless
Figure 5: WGZ030DA - 060DA (Condenserless)
Y
X
2.0
51
23.5
597
Z
41.3
1050
26.8
681
*333611531* p. 1 of 2
CERT., WGZ030-060D, LESS COND
CIRCUIT 1
CIRCUIT 2
MICROTECH II USER INTERFACE
137.0
3480
152
312
12.3
6.0
20.2
512
ONLY
OUTLET
FOR SHIPPING
DISC. HANDLE
REMOVABLE REMOVE BRKT.
.88 DIA. KNOCKOUTS
INLET
ON OPPOSITE SIDE
EVAPORATOR
CONTROL CONNECTION
POWER
CONNECTIONS
.88" DIA. KNOCKOUTS
ISOLATOR HOLES (4)
762
DISCHARGE
60.0
419
CONNECTIONS
5.9
150
CONNECTIONS
LIQUID
1524
2.5
64
2.0
6.1
155
34.0
864
40.0
1016
9.0
229
20.0
508
51
16.5
EVAP. AND
30.0
30.4
772
.88 LIQUID
INLET
OUTLET
CONNECTIONS
1.38 DISCHARGE
CONNECTIONS
98.8
178
7.0
2509
2334
91.9
38.2
970
31.4
798 258
A
10.2
6.0
152
SIZE (NOM) A X Y Z
2.5 22.4 67.3 22.8 13.3
(64) (569) (1709) (579) (338)
2.5 21.7 68.2 23.8 13.4
(64) (551) (1732) (605) (340)
2.5 21.0 67.6 23.9 13.5
(64) (533) (1717) (607) (343)
2.5 19.6 67.1 24.0 13.6
(64) (498) (1704) (610) (345)
2.5 18.2 66.7 24.4 13.6
(64) (462) (1694) (620) (345)
2.5 17.5 66.1 24.5 13.6
(64) (445) (1679) (622) (345)
2.5 15.8 65.7 24.6 13.7
(64) (401) (1669) (625) (348)
CHILLER WATER
CONNECTION
IN(MM) VICTAULIC
CENTER OF GRAVITY
WGZ
MODEL
NUMBER
WGZ030D
WGZ055D
WGZ060D
WGZ035D
WGZ040D
WGZ045D
WGZ050D

Other manuals for Daikin WGZ030DW

Related product manuals