EasyManua.ls Logo

Daikin WGZ030DW - Dimensions - Packaged

Daikin WGZ030DW
64 pages
Print Icon
To Next Page IconTo Next Page
To Next Page IconTo Next Page
To Previous Page IconTo Previous Page
To Previous Page IconTo Previous Page
Loading...
16 IM 1131-2
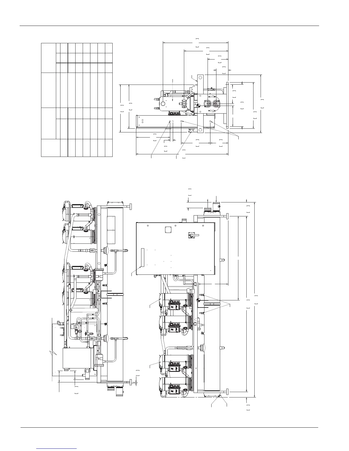
Dimensions - Packaged
Dimensions - Pack aged
Figure 1: WGZ030DW - 060DW (Packaged)
121.1
3075
3.8
98
134.6
3419
9.7
246
X
Y
29.0
.875 DIA. MOUNTING HOLES (4)
737
13.3
338
2.0
51
23.3
592
Z
"A"
15
.59 REF.
*333611521* p. 1 of 2
CERTIFIED, WGZ030-060D, PACKAGE
CIRCUIT 2
OUTLET
INLET
DRAIN
VENT
WATER CONNECTIONS
MICROTECH II USER INTERFACE
CONDENSER
COULD BE ON OPPOSITE
NOTE: CONDENSER
END IF ORDERED AS LH.
CIRCUIT 1
RELIEF VALVES
3.9
100
EVAPORATOR
FOR SHIPPING
OUTLET
REMOVE BRKT.
DISC. HANDLE
.88 KNOCKOUTS
.88 KNOCKOUTS
CONNECTIONS
INLET
ON OPPOSITE SIDE
REMOVABLE
ONLY
POWER
CONTROL
CONNECTIONS
770
30.3
1609
63.4
30.4
771
14.1
359
8.2
209
32.0
813
1140
44.9
1016
40.0
314
12.4
508
20.0
33.0
837
6.0
153
CONDENSER WATER
CONNECTION IN(MM)
VICTAULIC
SIZE (NOM) A SIZE (NOM) X Y Z
2.5 14.4 4 59.2 22.4 14.1
(64) (366) (102) (1504) (569) (358)
2.5 13.7 4 59.9 23.3 14.2
(64) (349) (102) (1522) (592) (361)
2.5 13.0 4 59.5 23.2 14.2
(64) (331) (102) (1511) (589) (361)
2.5 11.7 4 59.1 23.3 14.2
(64) (296) (102) (1501) (592) (361)
2.5 10.3 4 58.9 20.2 14.2
(64) (260) (102) (1496) (513) (361)
2.5 9.6 4 58.520.314.2
(64) (243) (102) (1486) (516) (361)
2.5 7.8 4 57.920.514.3
(64) (199) (102) (1471) (521) (363)
CHILLER WATER
CONNECTION
IN(MM) VICTAULIC
CENTER OF
GRAVITY
WGZ
MODEL
NUMBER
WGZ030D
WGZ055D
WGZ060D
WGZ035D
WGZ040D
WGZ045D
WGZ050D

Other manuals for Daikin WGZ030DW

Related product manuals