EasyManua.ls Logo

Daikin WGZ030DW - Page 17

Daikin WGZ030DW
64 pages
To Next Page IconTo Next Page
To Next Page IconTo Next Page
To Previous Page IconTo Previous Page
To Previous Page IconTo Previous Page
Loading...
IM 1131-2 17
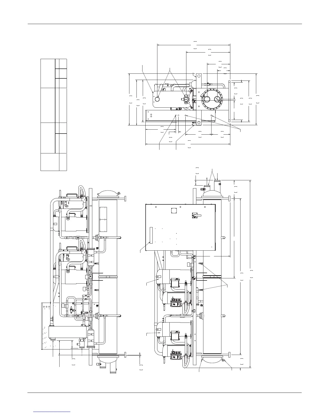
Dimensions - Packaged
Figure 2: WGZ070DW (Packaged)
145.5
3695
10.2
259
121.1
3075
14.2
361
X
Y
2.0
51
29.0
.875 DIA MOUNTING HOLES (4)
737
13.0
330
23.5
597
Z
*333611621* p. 1&2 of 3
CERTIFIED, WGZ070-130D
VENT
DRAIN
CG
NOTE: CONDENSER
WATER CONNECTIONS
CONDENSER
OUTLET
COULD BE ON OPPOSITE
MICROTECH II USER INTERFACE
INLET
END IF ORDERED AS LH.
RELIEF VALVES
CIRCUIT 2 CIRCUIT 1
4 IN. VICTAULIC
CONNECTIONS
4.0
102
ONLY
REMOVE BRKT.
INLET
FOR SHIPPING
.88 KNOCKOUTS
CONNECTIONS
REMOVABLE
.88 KNOCKOUTS
CONTROL
DISC. HANDLE
CONNECTIONS
EVAPORATOR
CG
ON OPPOSITE SIDE
OUTLET
POWER
3 IN. VICTAULIC
CONNECTIONS
14.5
369
20.0
508
65.5
1664
35.2
894
32.6
827
1016
40.0
1434
56.4
866
34.1
454
17.9
253
10.0
813
32.0
40.2
1021
.6
15
A
OUTLET
INLET
6.0
152
CONDENSER WATER
CONNECTION IN(MM)
VICTAULIC
SIZE (NOM) A SIZE (NOM) X Y Z
3
CHILLER WATER
CONNECTION
IN(MM) VICTAULIC
CENTER OF
GRAVITY
WGZ
MODEL
NUMBER
WGZ070D
(76)
11.3
(287)
4
(102)
61.7
(1568)
28.2
(716)
15.0
(381)

Other manuals for Daikin WGZ030DW

Related product manuals