EasyManua.ls Logo

Danfoss DWH 200 - PL - Instalacja; Konserwacja

Danfoss DWH 200
28 pages
Print Icon
To Next Page IconTo Next Page
To Next Page IconTo Next Page
To Previous Page IconTo Previous Page
To Previous Page IconTo Previous Page
Loading...
21
VMBNB72J
PL – Instalacja/ Konserwacja
1 Instalacja
UWAGA! Ze względu na przepisy obowiązujące w Wielkiej
Brytanii, zasobniki c.w.u. są wyposażone fabrycznie w tempera-
turowy i ciśnieniowy zawór bezpieczeństwa (10 barów, 90-95°C).
Zawór znajduje się w zasobniku c.w.u. i należy go używać tylko
do podłączenia rurociągu odprowadzającego.
Ponadto, należy pamiętać, aby w przypadku pomp ciepła DHP-H
Opti Pro SP koniecznie zmienić maksymalną temperaturę c.w.u.
z domyślnej wartości fabrycznej 95°C na 85°C. Patrz rozdział 14.2
menu Serwis – HGW, parametr TEMP MAX. w instrukcji montażu
pompy ciepła.
1.1 Opis produktu
Danfoss DWH to nowoczesny i wydajny zasobnik o bardzo szero-
kiej gamie zastosowań do przygotowywania c.w.u.
Zasobnik c.w.u. Danfoss DWH został specjalnie zaprojektowany
jako uzupełnienie pomp ciepła firmy Danfoss.
Wspólnie będą stanowić estetyczny, miły dla oka element wypo-
sażenia nowego pomieszczenia, jakie powstanie po usunięciu
starego kotła i zbiornika oleju. Naturalnie zapewnią również naj-
wyższy komfort ogrzewania i przygotowywania c.w.u.
Dzięki kompletnie nowej technologii TWS, firma Danfoss stwo-
rzyła optymalny zasobnik c.w.u. TWS to nowoczesna technologia
warstwowego przygotowania c.w.u. w zasobniku, która umożli-
wia szybkie i wydajne podgrzewanie wody.
Zasobnik Danfoss DWH występuje w dwóch rozmiarach: 200 i
300 l jako zbiornik stalowy wyłożony blachą miedzianą lub ze
stali nierdzewnej. Zasobnik c.w.u. wykorzystuje się w instalacjach,
gdzie ciepła woda jest przygotowywana przez inne źródło ciepła,
w związku z czym można z nim stosować dowolne formy energii.
Zasobnik c.w.u. jest zaprojektowany zgodnie z wymogami dyrek-
tywy 97/23/WE Artykuł 3.3 w sprawie urządzeń ciśnieniowych.
1.2 Wymiary i przyłącza
455
596
690
40 ±10
1
23
4
5
6
7
H
Rysunek 1: Danfoss DWH
Nr Nazwa
1 Powrót Ø 22 mm
2 C.w.u. Ø 22 mm
3 Zimna woda Ø 22 mm
4 Wyjście Ø 22 mm
5 Wlot przewodu elektrycznego
6 Wentylacja, zasobnik c.w.u. ze stali nierdzewnej
7 Temperaturowy i ciśnieniowy zawór bezpieczeństwa
Danfoss DWH 200 300
Objem Sek./Prim., l 180/7,5 286/10
Ciśnienie konstrukcyjne Sek./
Prim., MPa
1,0/0,3 1,0/0,3
Ciśnienie próbne Sek./Prim.,
MPa
1,43/0,43 1,43/0,43
Suchej masy, kg 141 147
Wypełnione wagi, kg 321 433
Výška, H*, mm 1538 1845
*) Výška platí s nohami nastavenými do nejnižší úrovně
1.3 Montaż
Procedura zdejmowania przedniej pokrywy:
Usunąć opakowanie.1.
Nacisnąć przednią pokrywę obudowy i przekręcić zaczep 2.
o 90° w lewo, aby zwolnić pokrywę.
Odchylić ją na zewnątrz.3.
Unieść przednią pokrywę i zdjąć z pompy ciepła.4.
Ustawianie
W pomieszczeniu powinna znajdować się kratka ściekowa.
Zasobnik Danfoss DWH instaluje się w pozycji pionowej.
Najpierw ustawia się zasobnik c.w.u., a następnie podłącza
rurki. Jeśli zasobnik ma być instalowany razem z pompą ciepła,
należy go umieścić za pompą ciepła i połączyć wężem ela-
stycznym.
1.4 Instalacja rurowa
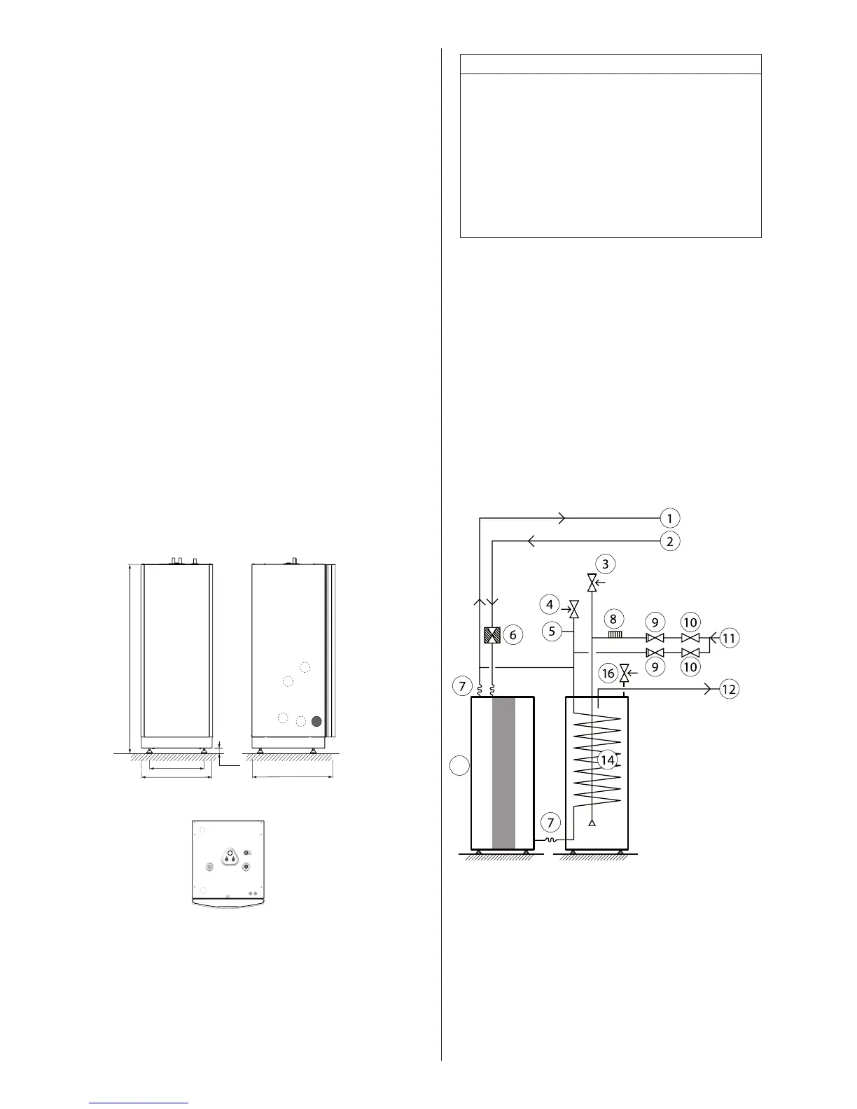
13
Rysunek 2: Ogólny schemat połączeń zasobnika Danfoss DWH.
Nr Nazwa
1 Wyjście
2 Powrót
3 Zawór bezpieczeństwa zimnej wody
4 Zawór bezpieczeństwa naczynia wzbiorczego instalacji grzewczej
5 Naczynie wzbiorcze instalacji grzewczej
6 Filtr siatkowy
7 Węże elastyczne
8 Zawór próżniowy
9 Zawór zwrotny
10 Zawór odcinający
11 Zimna woda
12 C.w.u.
13 Pompa ciepła
14 Zasobnik c.w.u. Danfoss DWH
16 Temperaturowy i ciśnieniowy zawór bezpieczeństwa

Other manuals for Danfoss DWH 200

Related product manuals