EasyManua.ls Logo

Danfoss DWH 200 - CS - Instalace;Údržba

Danfoss DWH 200
28 pages
Print Icon
To Next Page IconTo Next Page
To Next Page IconTo Next Page
To Previous Page IconTo Previous Page
To Previous Page IconTo Previous Page
Loading...
23
VMBNB72J
CS – Instalace/Údržba
1 Instalace
UPOZORNÌNÍ! Vzhledem k požadavkùm platným ve Velké
Británii jsou ohøívaèe teplé vody Danfoss od výrobce vybavena
pojistným ventilem pro teplotu 90 - 95 °C a tlak 10 bar. Ventil je
umístìn v nádrži na vodu a nesmí se používat k jiným úèelùm než
k pøipojení vypouštìcího potrubí.
Také vezmìte na vìdomí, že z uvedeného dùvodu je nutné zmì-
nit maximální teplotu teplé vody u tepelných èerpadel DHP-H
Opti Pro SP z výchozího nastavení od výrobce 95 °C na 85 °C. Viz
kapitola 14.2, nabídka Servis – parametr HGW MAX. TEPLOTA v
pøíruèce pro instalaci tepelného èerpadla.
1.1 Popis výrobku
Danfoss DWH je moderní a účinná zásobní nádrž s velmi širokou
řadou využití při ohřevu teplé vody.
Ohřívač teplé vody Danfoss DWH je speciálně navržen tak, aby
doplňoval tepelná čerpadla Danfoss.
Společně vytvoří součást nové místnosti s příjemným vzhle-
dem, kterou získáte odstraněním starého kotle a olejové nádrže.
Samozřejmě vám také nabídnou to největší pohodlí při vytápění
a ohřevu vody.
Společnost Danfoss využila zcela novou technologii TWS a vytvo-
řila optimalizovanou nádrž na teplou vodu. TWS znamená
stratifikaci vody z vodovodu. Tato technologie má za následek
účinnější přenášení tepla a účinnější vrstvení vody v nádrži na
teplou vodu.
Nádrž Danfoss DWH je k dispozici ve dvou velikostech: 200
a 300 litrů a lze ji dodat v provedení z oceli s měděným povlakem
nebo z nerezové oceli. Nádrž na teplou vodu se používá v instala-
cích, v nichž je teplá voda vytvářena jiným zdrojem tepla, proto ji
lze použít s jakýmikoliv typy energie.
Nádrž na teplou vodu je navržena podle směrnice pro tlaková
zařízení 97/23/ES, článku 3.3.
1.2 Přípojky a rozměry
455
596
690
40 ±10
1
23
4
5
6
7
H
Obr. 1: Danfoss DWH
Pozice Název
1 Zpětné potrubí Ø 22 mm
2 Teplá voda Ø 22 mm
3 Studená voda Ø 22 mm
4 Přívodní potrubí Ø 22 mm
5 Přívod elektrického napájení
6 Ventilace, ohřívač vody z nerezové oceli
7 Pojistný ventil pro teplotu a tlak
Danfoss DWH 200 300
Objętość wt/pierw, l 180/7,5 286/10
Výpočtový tlak wt/pierw MPa 1,0/0,3 1,0/0,3
Zkušební tlak wt/pierw MPa 1,43/0,43 1,43/0,43
Suchá hmotnost, kg 141 147
Obsazeno hmotnost, kg 321 433
Wysokość, H*, mm 1538 1845
*) Wysokość przy maksymalnie obniżonych nóżkach
1.3 Montáž
Při odstraňování přední strany postupujte následujícím způso-
bem:
Odstraňte obalový materiál.1.
Zatlačte na přední kryt a otočte západku o 90 ° doleva, 2.
abyste ho uvolnili.
Vyklopte přední kryt ven.3.
Zvedněte přední kryt a vyjměte ho z tepelného čerpadla.4.
Umístění
Místnost musí mít podlahovou výpust.
Nádrž Danfoss DWH je určena ke svislé instalaci.
Nádrž na teplou vodu se instaluje na místo a potom se připojí
potrubí. Pokud se nádrž instaluje společně s tepelným čerpa-
dlem, musí se umístit vedle tepelného čerpadla a připojit pruž-
nými hadicemi.
1.4 Instalace potrubí
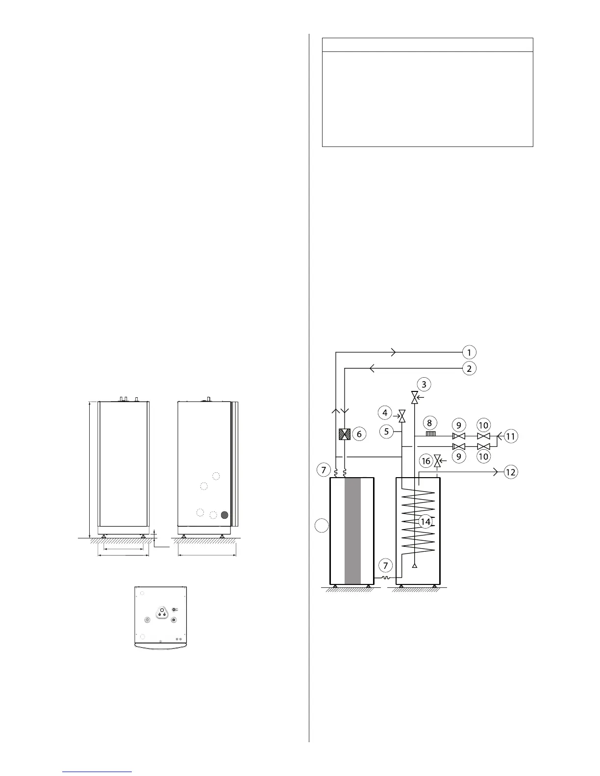
13
Obr. 2: Všeobecné schéma zapojení nádrže Danfoss DWH
Pozice Název
1 Přívodní potrubí
2 Zpětné potrubí
3 Pojistný ventil, studená voda
4 Pojistný ventil, expanzní nádoba topného systému
5 Expanzní nádoba, topný systém
6 Filtr
7 Pružné hadice
8 Podtlakový ventil
9 Zpětný ventil
10 Uzavírací ventil
11 Studená voda
12 Teplá voda
13 Tepelné čerpadlo
14 Ohřívač vody Danfoss DWH
16 Pojistný ventil pro teplotu a tlak

Other manuals for Danfoss DWH 200

Related product manuals