EasyManua.ls Logo

Danfoss EPU 2370 - Page 42

Danfoss EPU 2370
48 pages
To Next Page IconTo Next Page
To Next Page IconTo Next Page
To Previous Page IconTo Previous Page
To Previous Page IconTo Previous Page
Loading...
42 VI.72.M4.02 Danfoss 11/97 BC-HM
Control principle
PI control of supply air temperature (duct
temperature - S1). Temperature held
constant by motor valve control M in
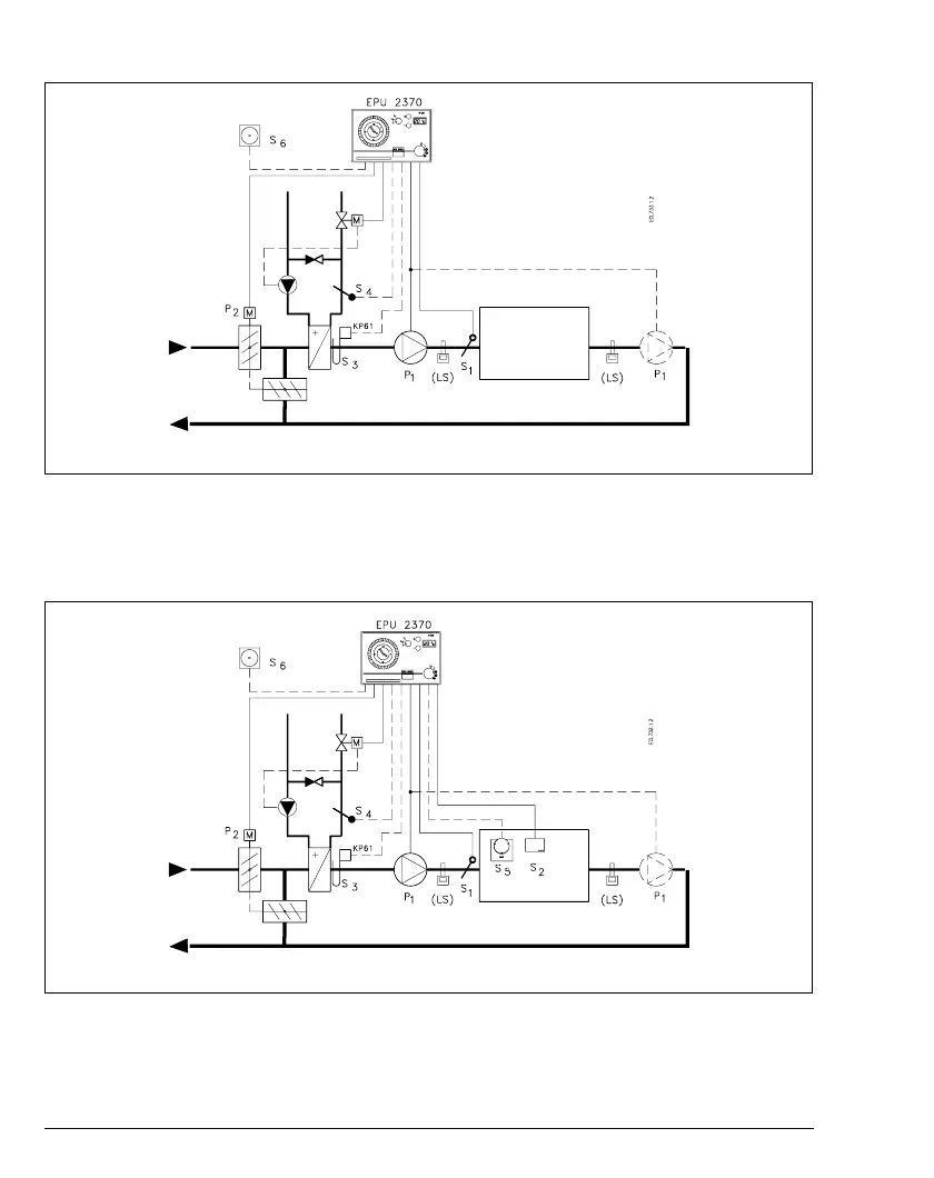
System 5-A - Ventilation system with constant supply air temperature
System 5-B - Ventilation system with constant room temperature
Control principle
PI control of supply air temperature (duct
temperature - S1) and P room
temperature control (S2). Temperature
held constant by motor valve control M
in heat exchanger primary circuit. Fan
P1 controlled by relay R1, damper P2 by
relay R2.
System types 5-A and 5-B - Ventilation system
heat exchanger primary circuit. Fan P1
controlled by relay R1, damper P2 by
relay R2.

Related product manuals