EasyManua.ls Logo

Danfoss EPU 2370

Danfoss EPU 2370
48 pages
To Next Page IconTo Next Page
To Next Page IconTo Next Page
To Previous Page IconTo Previous Page
To Previous Page IconTo Previous Page
Loading...
BC-HM VI.72.M4.02 Danfoss 11/97 47
Notes:
- All frost protection annulled.
- System 6-B (P+PI) is registered
automatically when sensor S2 is
connected. The necessary settings
become visible in the display
(registered when the unit is switched
on).
- Load-dependent compensation is
possible by connecting sensor S6.
Two independent compensation
curves can be set. Curves must be
set in P6.2 and P6.3 in P7.2 and P7.3
respectively.
- With economy temperature, total stop
function in P1.2 has the following
influence:
0 Control according to reduced
setpoint (P9.0).
Fan constantly cut in.
1 Valve closes and fan stops until
the room temperature has risen
to the required temperature.
Valve then opens and fan starts
until room temperature has fallen
1 degree.
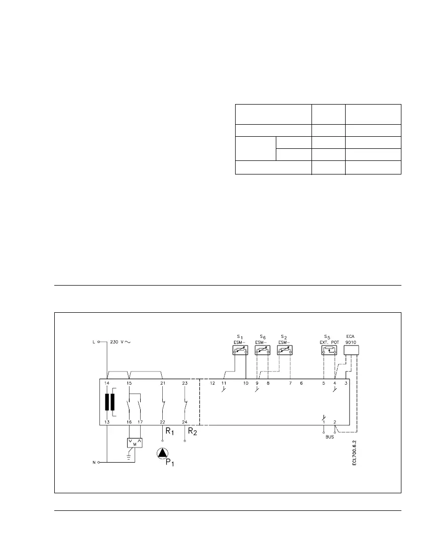
- Relay status for different operating
situations with this system is as
follows:
Operating
Relay 1 Relay 2
condition
Standby 0 0
P1.2 = 0 1 time switch**)
Economy
P1.2 = 1 0 time switch**)
Normal 1*) time switch**)
Wiring diagram - System types 6-A and 6-B
*
)
On changing over from normal to
economy operation, R1 is delayed 3
minutes.
**
)
Relay contact R2 open with reduced
temperature.
0 = open relay contact
1 = closed relay contact

Related product manuals