EasyManua.ls Logo

Danfoss FC 103 - Page 18

Danfoss FC 103
78 pages
Print Icon
To Next Page IconTo Next Page
To Next Page IconTo Next Page
To Previous Page IconTo Previous Page
To Previous Page IconTo Previous Page
Loading...
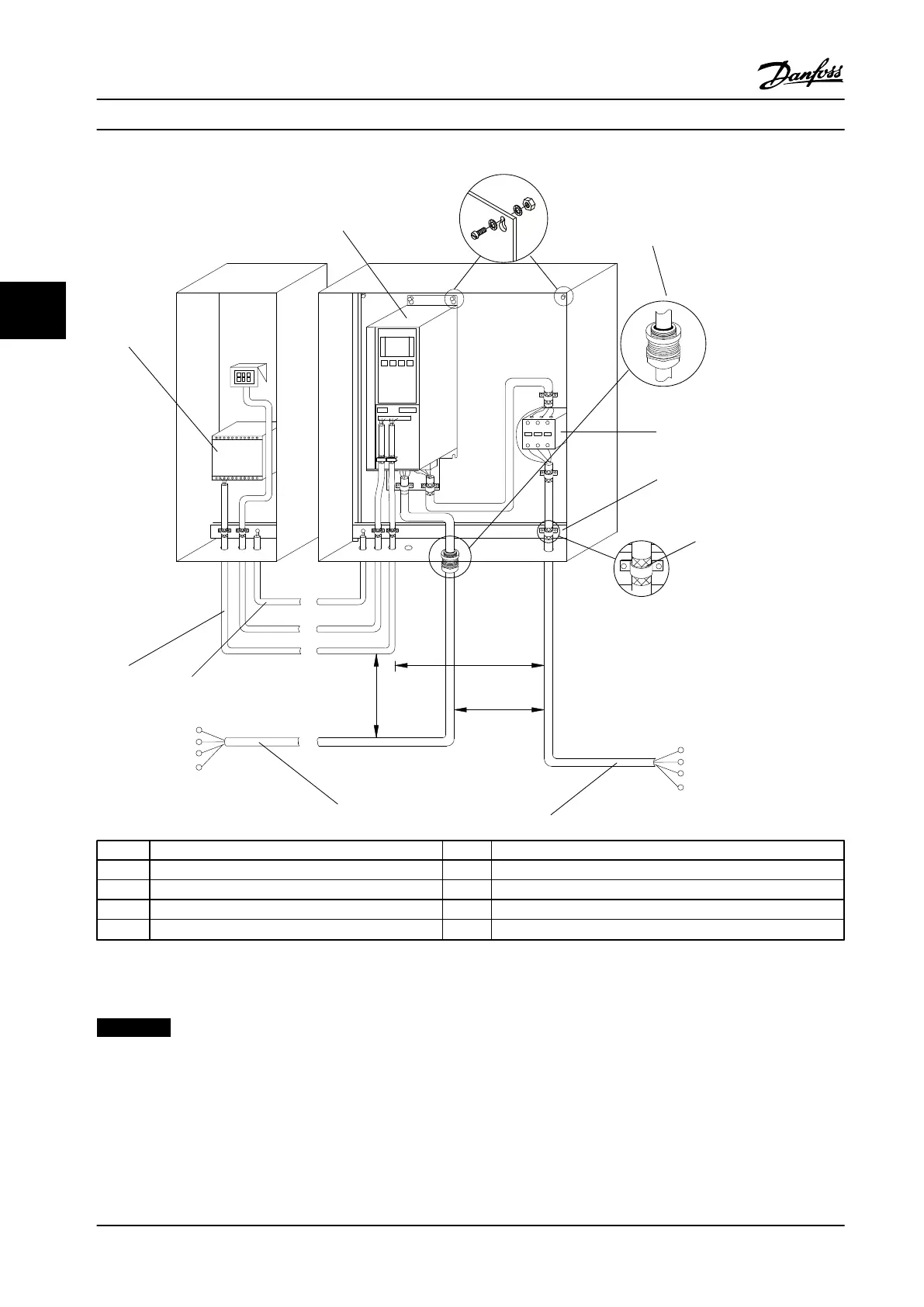
130BD529.11
1
2
3
4
5
6
8
PE
U
V
W
9
L1
L2
L3
PE
10
11
1 PLC 6 Cable connector
2 Adjustable frequency drive 7 Motor, 3-phase and PE
3 Output contactor 8 Line power, 3-phase and reinforced PE
4 Grounding rail (PE) 9 Control wiring
5 Cable insulation (stripped) 10
Equalizing min. 0.025 in
2
[16 mm
2
]
Figure 4.2 EMC-compliant Electrical Connection
NOTICE!
EMC INTERFERENCE
Run cables for input power, motor wiring and control wiring in three separate metallic conduits. Failure to isolate
power, motor and control cables can result in unintended behavior or reduced performance. Minimum 7.9 in [200 mm]
clearance between power, motor and control cables is required.
Electrical Installation Instruction Manual
16 Danfoss A/S © Rev. 2014-04-10 All rights reserved. MG16E322
44

Table of Contents

Related product manuals