EasyManua.ls Logo

Danfoss VLT HVAC Drive FC 102 - Control Compartment Interior View

Danfoss VLT HVAC Drive FC 102
196 pages
Print Icon
To Next Page IconTo Next Page
To Next Page IconTo Next Page
To Previous Page IconTo Previous Page
To Previous Page IconTo Previous Page
Loading...
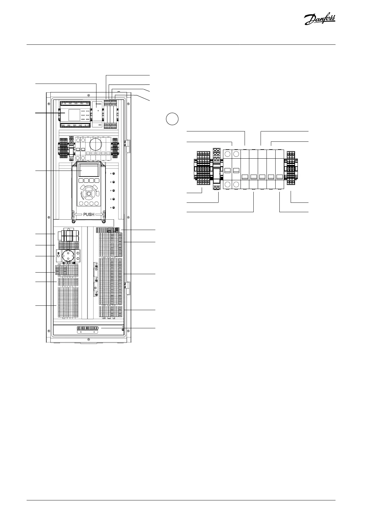
5.7.2 Control Compartment Interior View
e30bu140.10
2
17
15
16
18
14
20
19
21
22
3
A
6
7
8
9
24
25
26
1
10
11
A
12
13
4
5
23
27
Illustration 48: Layout of Control Compartment Interior with All Options
AQ262141314214en-000301 / 130R088082 | Danfoss A/S © 2021.11
Electrical Installation
VLT® HVAC Drive FC 102
Operating Guide

Table of Contents

Other manuals for Danfoss VLT HVAC Drive FC 102

Related product manuals