EasyManua.ls Logo

Danfoss VLT HVAC Drive FC 102 - Page 97

Danfoss VLT HVAC Drive FC 102
196 pages
Print Icon
To Next Page IconTo Next Page
To Next Page IconTo Next Page
To Previous Page IconTo Previous Page
To Previous Page IconTo Previous Page
Loading...
1.
2.
3.
4.
5.
6.
7.
Strip a section of the outer cable insulation.
Fasten a connector/cable lug to the end of the stripped cable.
Create an electrical connection between the cable shield and ground by securing the stripped wire under the cable clamp.
Connect the ground wire to the nearest grounding terminal in accordance with the grounding instructions provided in
5.8.6 Connecting to Ground.
Connect the 3-phase AC input power cables to terminals R (L1), S (L2), and T (L3).
When supplied from an isolated mains source (IT mains or floating delta) or TT/TN-S mains with a grounded leg (grounded
delta), ensure that parameter 14-50 RFI Filter is set to [0] Off to avoid damage to the DC link and to reduce ground capacity
currents.
Tighten the terminals in accordance with the specifications shown in 10.11 Fastener Torque Ratings.
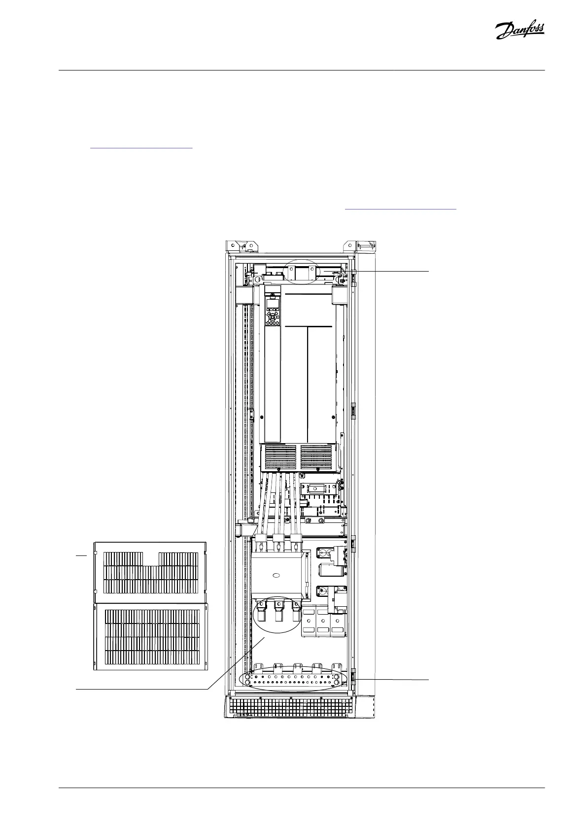
Example
e30bu172.10
1
2
4
3
Illustration 56: Connection Points for Mains to Input Power Option (Enclosed Drive Configured Without Power Options Cabinet)
AQ262141314214en-000301 / 130R0880 | 97Danfoss A/S © 2021.11
Electrical Installation
VLT® HVAC Drive FC 102
Operating Guide

Table of Contents

Other manuals for Danfoss VLT HVAC Drive FC 102

Related product manuals