EasyManua.ls Logo

Danfoss VLT HVAC Drive FC 102 - Page 99

Danfoss VLT HVAC Drive FC 102
196 pages
Print Icon
To Next Page IconTo Next Page
To Next Page IconTo Next Page
To Previous Page IconTo Previous Page
To Previous Page IconTo Previous Page
Loading...
1.
2.
3.
4.
5.
6.
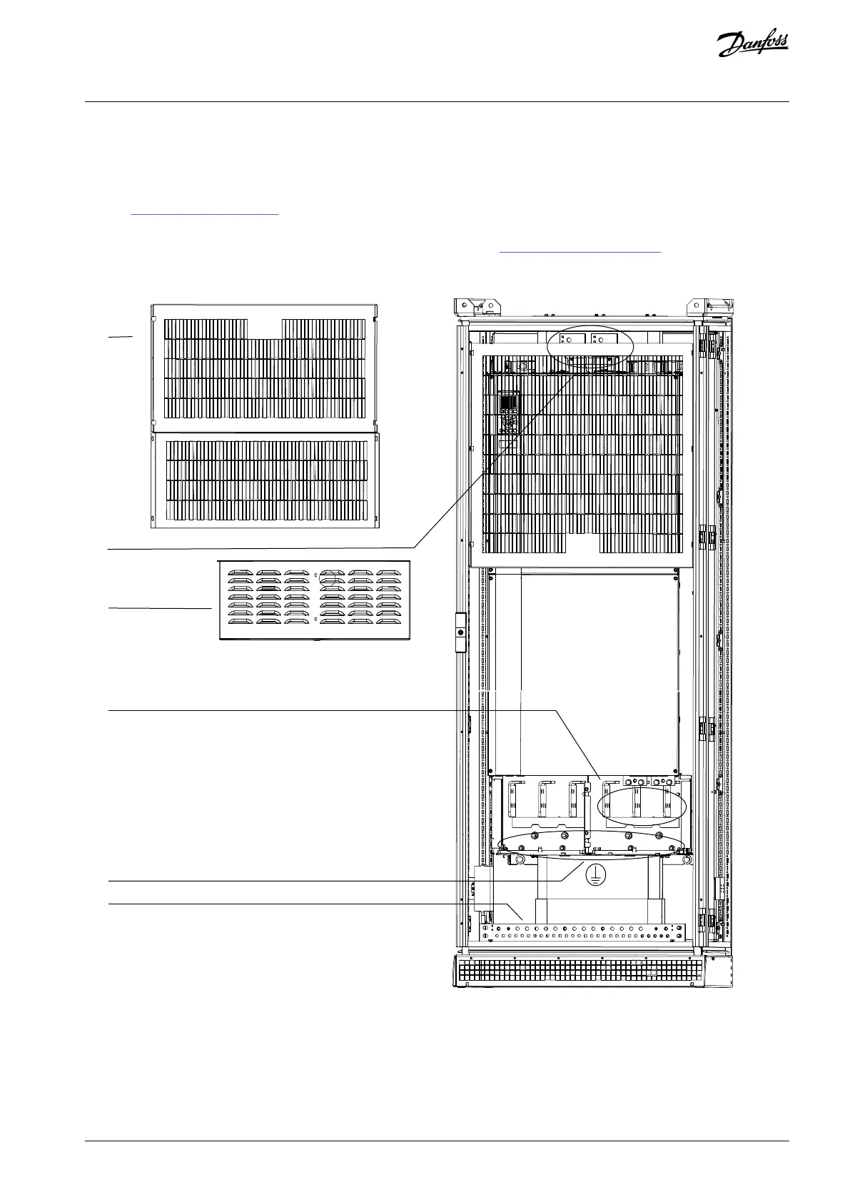
Strip a section of the outer cable insulation.
Fasten a connector/cable lug to the end of the stripped cable.
Create an electrical connection between the cable shield and ground by securing the stripped wire under the cable clamp.
Connect the ground wire to the nearest grounding terminal in accordance with the grounding instructions provided in
5.8.6 Connecting to Ground.
Connect the 3-phase AC motor cables to terminals U (T1), V (T2), and W (T3).
Tighten the terminals in accordance with the specifications shown in 10.11 Fastener Torque Ratings.
Example
e30bu171.10
1
3
4
5
6
2
Illustration 58: Connection Points for Drive Module to Motor (E6h Model Shown)
AQ262141314214en-000301 / 130R0880 | 99Danfoss A/S © 2021.11
Electrical Installation
VLT® HVAC Drive FC 102
Operating Guide

Table of Contents

Other manuals for Danfoss VLT HVAC Drive FC 102

Related product manuals