EasyManua.ls Logo

Darfon H5000 - Grid (Utility) Connection Guide; Grid Connection Preparation and Safety; Wiring the AC Grid Connection

Darfon H5000
33 pages
Print Icon
To Next Page IconTo Next Page
To Next Page IconTo Next Page
To Previous Page IconTo Previous Page
To Previous Page IconTo Previous Page
Loading...
I N S T A L L A T I O N M A N U A L H 5 0 0 0 H Y B R I D I N V E R T E R
R e v . 2 © 2 0 1 7 D a r f o n E l e c t r o n i c s C o r p . 7 | P a g e
GRID (UTILITY) CONNECT ION
Preparation
Before connecting to the utility, please install a separate AC circuit breaker between inverter and AC Grid utility. This
will ensure the inverter can be securely disconnected during maintenance and is fully protected from over current of AC
input.
Notes: 1. The separate circuit breaker is necessary for safety. Use a 240VAC/40A circuit breaker.
2. The overvoltage category of the AC input is III. It should be connected to the power distribution.
AC GRID
UTILITY
TYPE
USA: 240V/120V SPLIT-PHASE SYSTEM
EURO: 230V SINGLE PHASE SYSTEM
GRID CONNECTION WIRING
REQUIREMENTS
GRID RATED POWER
NOMINAL VOLTAGE
WIRE SIZE
TORQUE
5KW
230/240 VAC
8 AWG
0.82 Nm
WARNING. To reduce the risk of injury, use the recommended wire size above. It is very important for system safety and
efficient operation to use the appropriate wire for grid (utility) connection.
WARNING. To prevent the risk of electric shock, make sure the ground wire is properly earthed before operating this unit
whether the grid is connected or not.
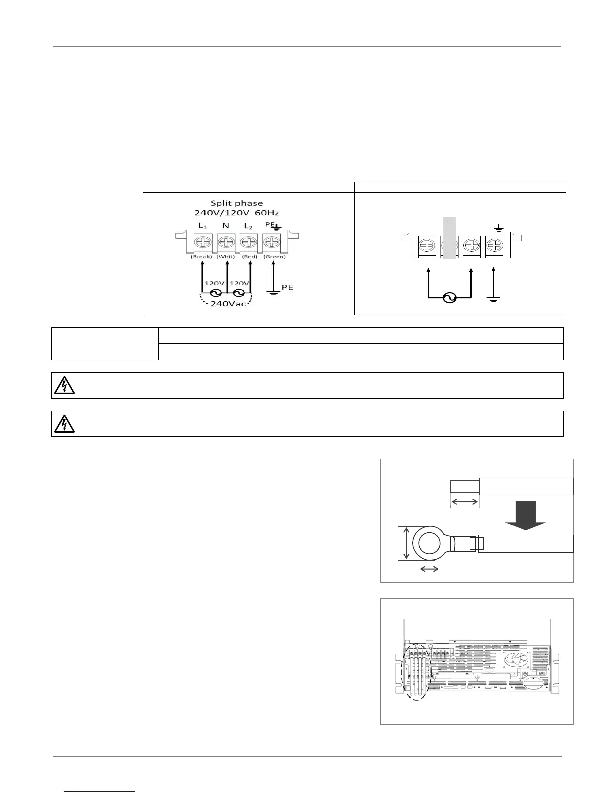
Connecting to the Grid/Utility
Step 1. Check the grid voltage and frequency with an AC
voltmeter. It should be within the operation AC voltage
range of the product’s specifications.
Step 2. Turn off the circuit breaker.
Step 3. For each AC wire, strip 8mm of isolation and then insert
the conductor into the ring lug.
Step 4. Connect the AC wires to the inverter according to the
labels indicated on the terminal block and your grid utility
type. Be sure to connect PE protective conductor (Ground)
first.
230Vac
L N PE
NL
Single phase
230V 50Hz
PE
(Brown) (Blue) (Green)
CONNECTIN G TO AC UTILITY TERMINAL
AC WIRE FOR GRID CONNECTION
10mm
4mm
8mm

Related product manuals