EasyManua.ls Logo

DCS RDS-486GL - Cabinet Preparation

DCS RDS-486GL
30 pages
Print Icon
To Next Page IconTo Next Page
To Next Page IconTo Next Page
To Previous Page IconTo Previous Page
To Previous Page IconTo Previous Page
Loading...
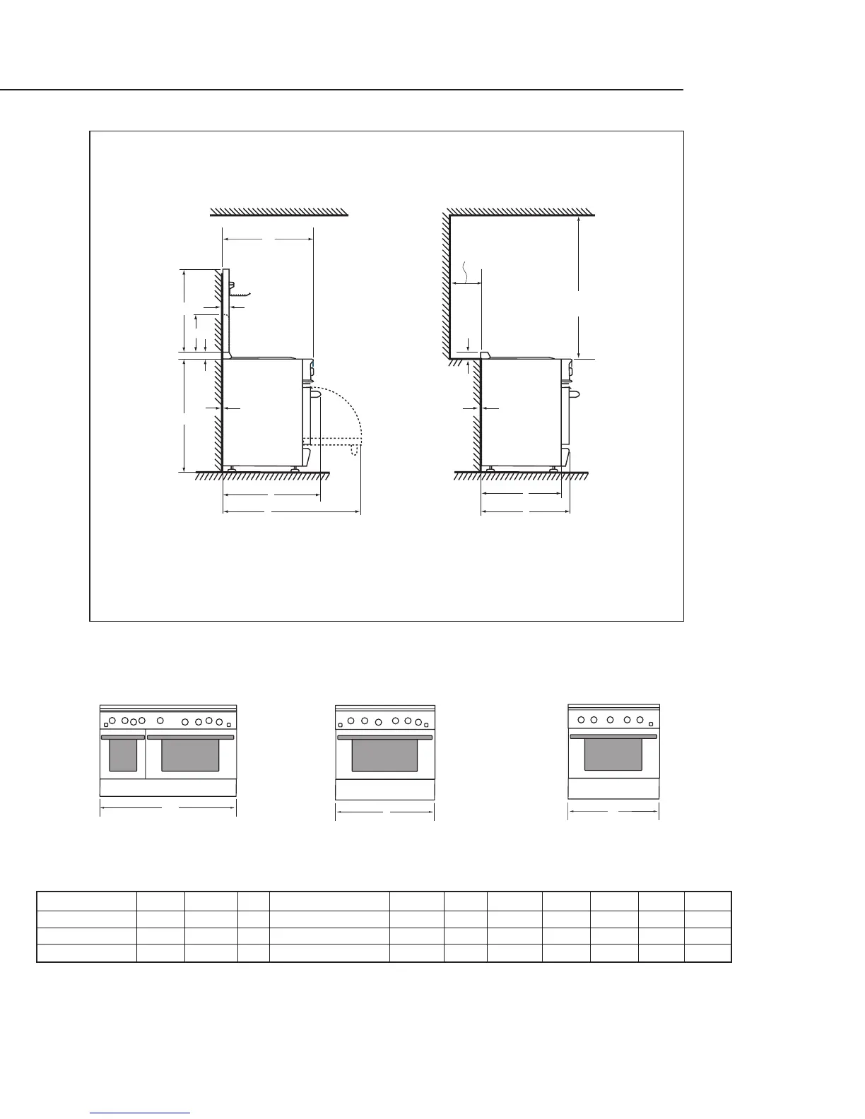
CABINET PREPARATION
12
0 Clearance
C
J
I
0 Clearance
B
A
F
C
H
E
D
G
36" Min. to
Combustibles
12" Min. to
Combustibles
without backguard
As defined in the
National Fuel Gas Code
(ANSI Z223.1, Latest Edition).
The range height is adjustable. The level of the
range top must be at the same level or above the countertop level.
Fig. 11 All RDS Models Product / Installation Clearance Specifications
A B C D E F G H I J K
RDS-48 Models 28-1/8 10-1/8 2 35-1/2min.-37 max. 30-1/4 44-1/2 28-1/4 1-5/16 25 27-3/8 47-7/8
RDS-36 Models 28-1/8 10-1/8 2 35-1/2min.-37 max. 30-1/4 44-1/2 28-1/4 1-5/16 25 27-3/8 35-7/8
RDS-305 Models 28-1/8 10-1/8 2 35-3/4min.-37 max. 28-3/16 43-7/8 27-3/8 1-5/16 24-3/16 26-3/4 29-7/8
STANDARD INSTALLATION:
ISLAND INSTALLATION:
K
K
K
RDS-48 Models RDS-36 Models RDS-305 Models

Related product manuals