EasyManua.ls Logo

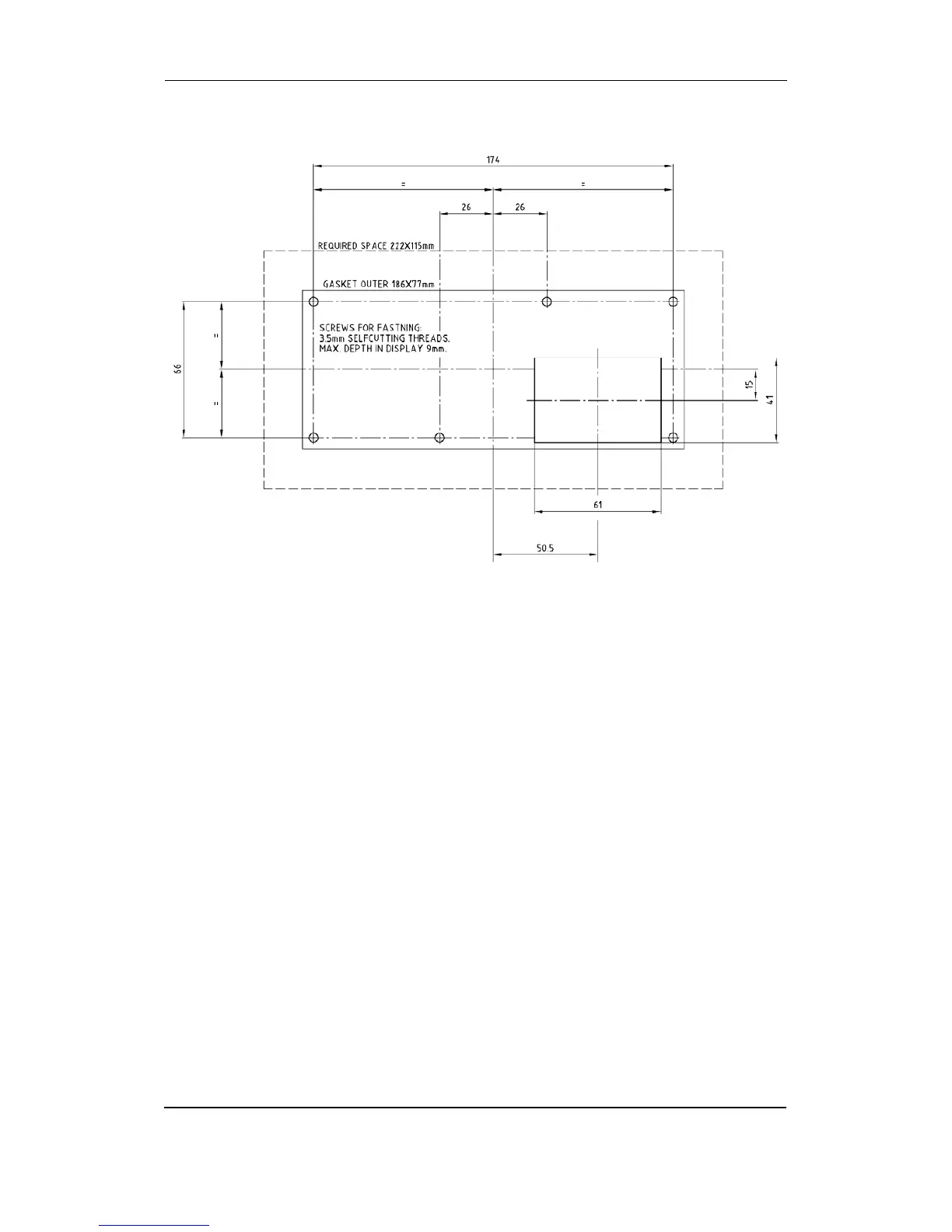
Deif PPU - Panel Cutout (in mm)

Deif PPU
69 pages
Print Icon
To Previous Page IconTo Previous Page
To Previous Page IconTo Previous Page
Loading...
PPM Installation Instructions
DEIF A/S Page 69 of 69
Panel cutout (in mm)
DEIF A/S reserves the right to change any of the above

Related product manuals