EasyManua.ls Logo

Dimplex LIA 0608BWCF M - Dimension Drawing Indoor Unit

Dimplex LIA 0608BWCF M
64 pages
Print Icon
To Next Page IconTo Next Page
To Next Page IconTo Next Page
To Previous Page IconTo Previous Page
To Previous Page IconTo Previous Page
Loading...
EN-48 452172.66.10-EN · FD 0311 www.dimplex.de
English LIA 0608BWCF M - LIA 1316BWCF M
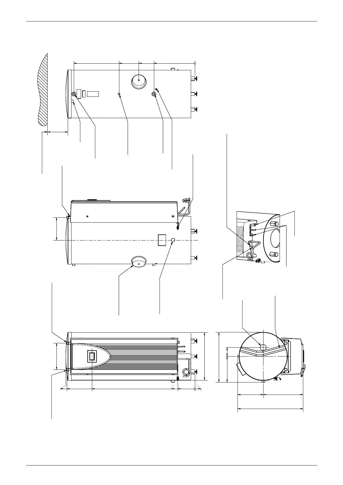
16.5 Dimension drawing indoor unit
388
1890
1876
1506
319
250
0
30
700
733
379
130
959
585 374
333
ca. 300
1773
1110
820
600
0
Condensate drip tray
Hose Ø19
Connection split lines
Protection anode
Cable duct (top) under
the cylinder cover
Heating water return
&ƄƄĢƇŅĄîãÍÆî±ãĤ«îçƴͬ
+î´Í¬ÿîã«Ôÿ
&ƄƄĢƇŅĄîãÍÆî±ãĤ«îçƴͬ
Cable entry from above
Electric heating element, 1.5 kW
G 1 1/2” internal thread
optional connection
Immersion heater
Space requirements for changing
the protection anode
Filling and drain cock
1/2“ (incl. hose sleeve)
ÔÆÿîã´Í«Ôÿ
R 1“ external thread
Circulation pipe
G 3/4“ internal thread
Domestic hot water outlet
R 1“ external thread
internal cable gland
Pipe connection area – for connecting an external
heat generator (the area must be cut out where necessary)
´ÍîãÍÆÔÍÍî´ÔÍç&ƄƄĢƇŅÍ&Ƅņ«îçƴͬ
Cable duct

Table of Contents

Related product manuals