EasyManua.ls Logo

Dimplex LIA 0608BWCF M - Circuit Diagram LIA 1316 BWCF 3-Phase

Dimplex LIA 0608BWCF M
64 pages
Print Icon
To Next Page IconTo Next Page
To Next Page IconTo Next Page
To Previous Page IconTo Previous Page
To Previous Page IconTo Previous Page
Loading...
www.dimplex.de 452172.66.10-EN · FD 0311 EN-53
LIA 0608BWCF M - LIA 1316BWCF M English
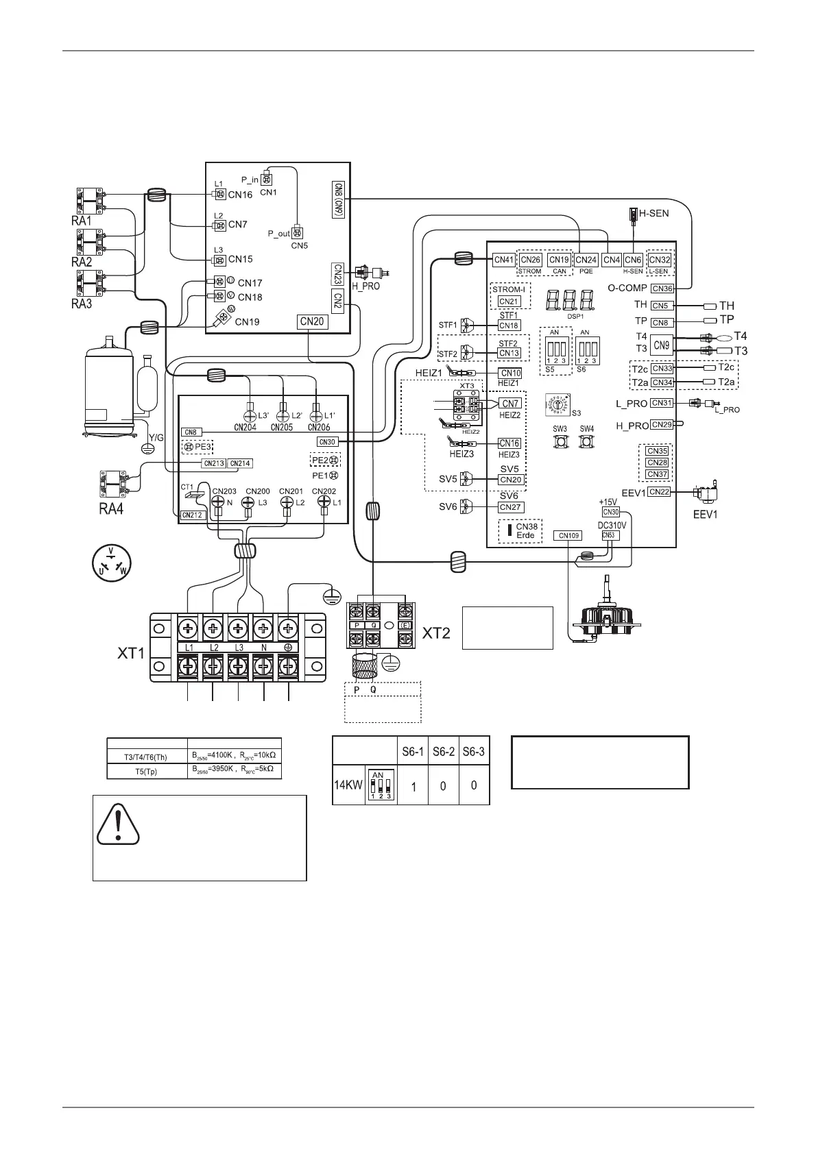
18.3 Circuit diagram LIA 1316BWCF
3-phase
black
Inverter board
red
red
black
black
brown
grey
brown
brown
grey
grey
red
black
blue
Ferrite core
Ferrite core
grey
brown
black
Additional
heat source
Filter board
black
red
blue
blue grey
brown
black
blue
grey
brown
black
Ferrite core
Ferrite core
Ferrite core
Address
Test
Forced
cooling
To heater
band
of drain
(>200mA)
red
Main board
fan
white
black
red
fan
It will take at least
ten minutes until
the power is switched
back on.
power supply
Temperature sensor code Property values
The leakage circuit breaker
must be installed on
the power supply of the device.
The device must be earthed.
To internal device
communication
FACTORY
SETTINGS
The circuit diagram is only
intended as a reference;
the actual product may differ.
Ferrite core
grey

Table of Contents

Related product manuals