EasyManua.ls Logo

DKS 1802-EPD - Circuit Board Adjustments

Default Icon
53 pages
Print Icon
To Next Page IconTo Next Page
To Next Page IconTo Next Page
To Previous Page IconTo Previous Page
To Previous Page IconTo Previous Page
Loading...
1802-065-A-8-06
Page 18
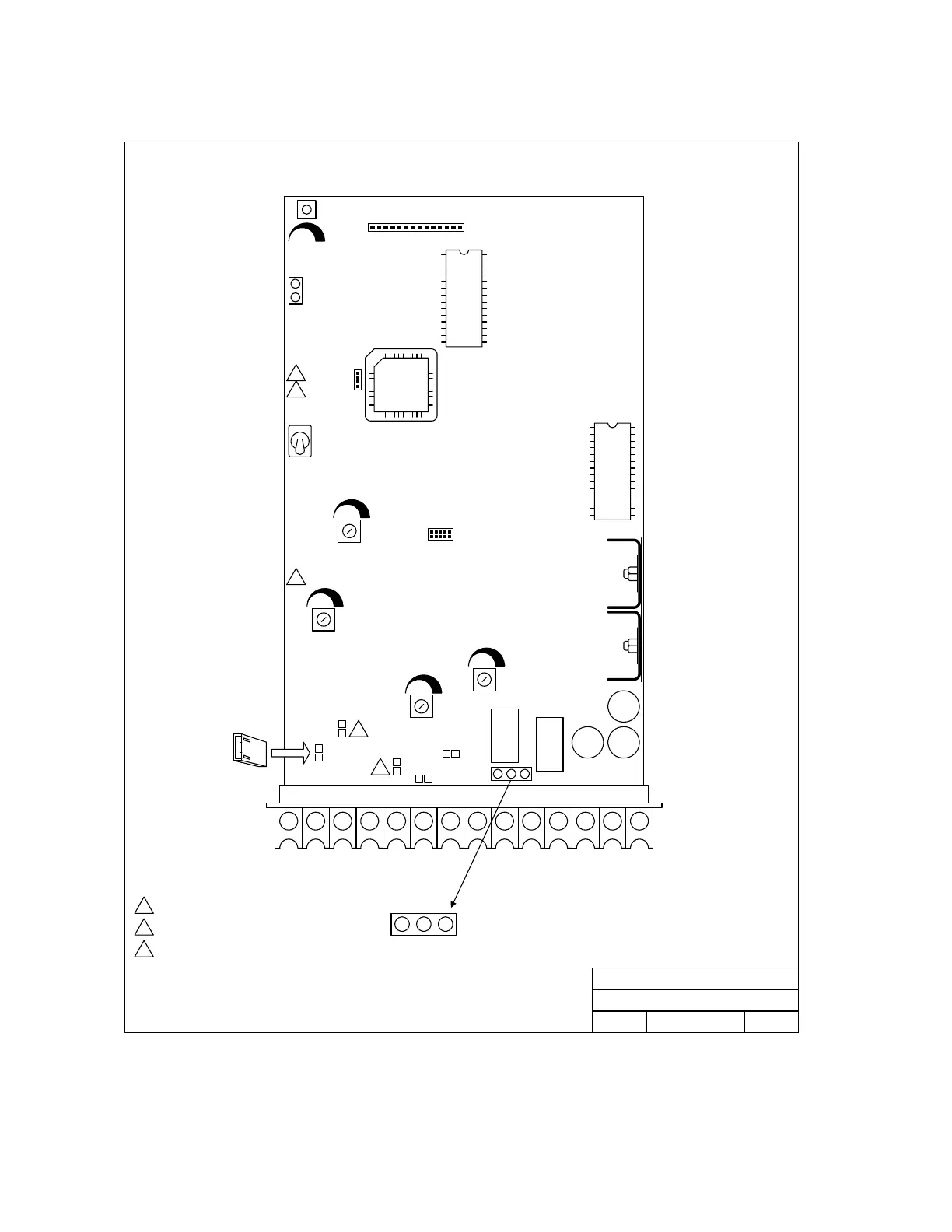
2.1 Circuit Board Adjustments
DOORKING, INC., INGLEWOOD, CA 90301
Title:
Date: Rev.Dwg. No.
1862 Control Board Adjustments
8/06
C
M1800-065-12
1862-010 Control Board Adjustments
MIN MAX
CONTRAST
DISPLAY
SWITCH 2
INPUT
Master
Code
ON
OFF
MIN MAX
MIN MAX
MIN MAX
KEYPAD CONNECTOR
FEEDBACK
SPEAKER
VOLUME
CLICK
SENS
RING PIN
N.O.
N.C.
COM
RELAY 2
TERMINALS
REV H Boards and later.
1
1
3 42 7 85 6 11 129 10 14131
MIN MAX
MIC
VOLUME
A-Z-CALL
BUTTON
CONNECTOR
HANDS
FREE
HANDSET
TONE ON
TONE OFF
2
REV I Boards and later.
2
2
2
3
Used on 1802-EPD model only.
3

Table of Contents

Related product manuals