EasyManua.ls Logo

DOLD BI 5910 - Page 40

DOLD BI 5910
140 pages
Print Icon
To Next Page IconTo Next Page
To Next Page IconTo Next Page
To Previous Page IconTo Previous Page
To Previous Page IconTo Previous Page
Loading...
40
40
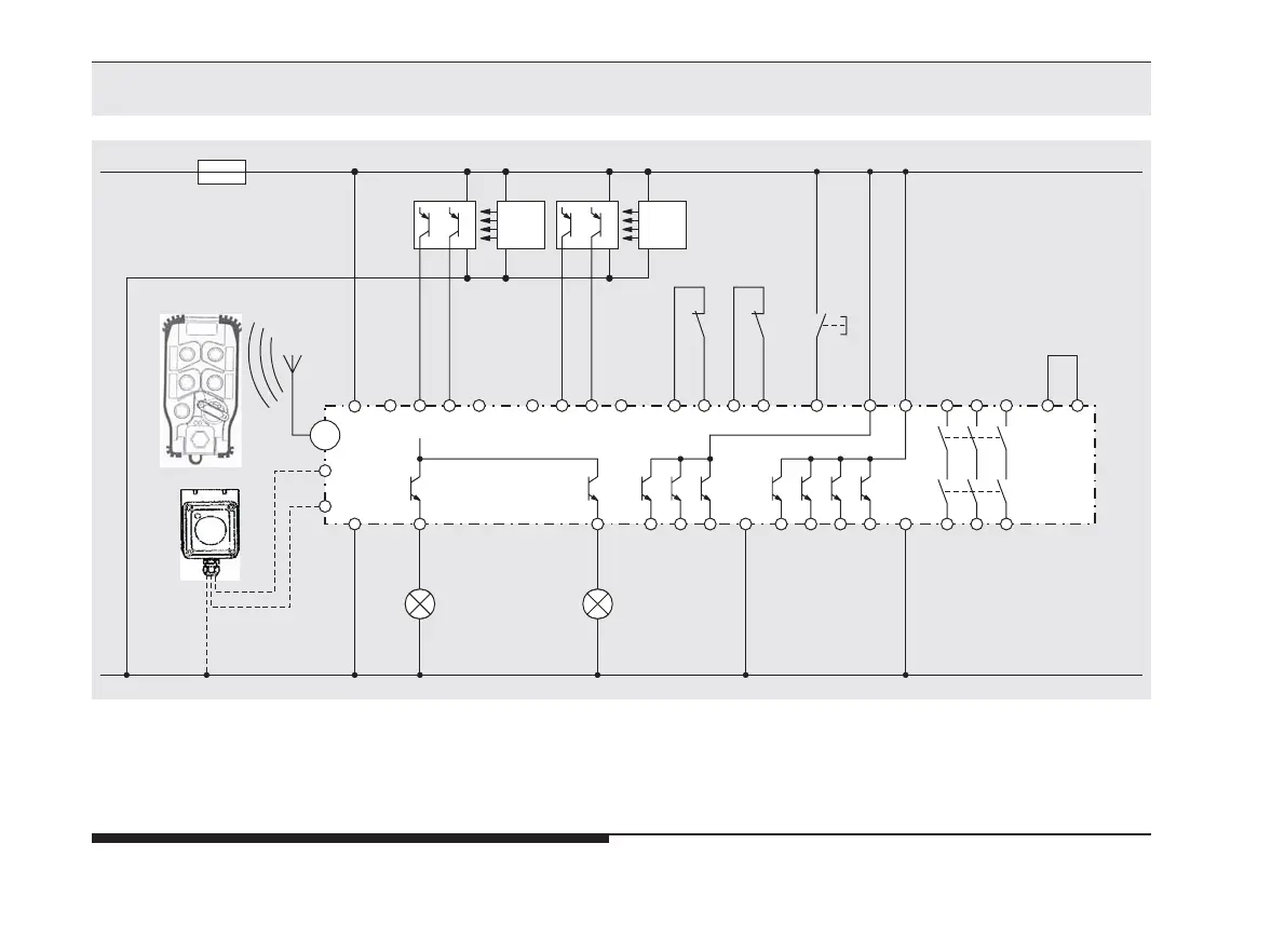
2.10 Operating modes 0-4 application examples
Rotational switches B: 0 to 4:
2 light curtains, Radio controlled e-stop via remote control
S11 S12 S14 S13 S21 S22 S24 S23 S31 S32 S34 S33 S42 A3+ A4+ 13 23 33 Y1 Y2
14 24 34A2-77675747A2-A2-
IR
A5+
372717
K1
K2
A1+
A1+
BI5910
L+
L-
M9597
4858
LC 2LC 1
trans-
mitter
trans-
mitter
----
++++
OSSDOSSD
start
failure,
(waiting for start)
- waiting for activation
of remote control
- remote control active
- failure code
control
contact 1
control
contact 2
2.10 Operating modes 0-4 application examples
Rotational switches B: 0 to 4:
2 light curtains, Radio controlled e-stop via remote control
S11 S12 S14 S13 S21 S22 S24 S23 S31 S32 S34 S33 S42 A3+ A4+ 13 23 33 Y1 Y2
14 24 34A2-77675747A2-A2-
IR
A5+
372717
K1
K2
A1+
A1+
BI5910
L+
L-
M9597
4858
LC 2LC 1
trans-
mitter
trans-
mitter
----
++++
OSSDOSSD
start
failure,
(waiting for start)
- waiting for activation
of remote control
- remote control active
- failure code
control
contact 1
control
contact 2

Table of Contents

Related product manuals