EasyManua.ls Logo

Dorma ED 250 - Connecting Accessories

Dorma ED 250
44 pages
Print Icon
To Next Page IconTo Next Page
To Next Page IconTo Next Page
To Previous Page IconTo Previous Page
To Previous Page IconTo Previous Page
Loading...
97 98 99 30 31 32 34 33 3335
1
36
1
4
4a
3
BA
1
57 57a
142
3
141
3
1
15
17
3
111
13 3
43 3646362
1G
3
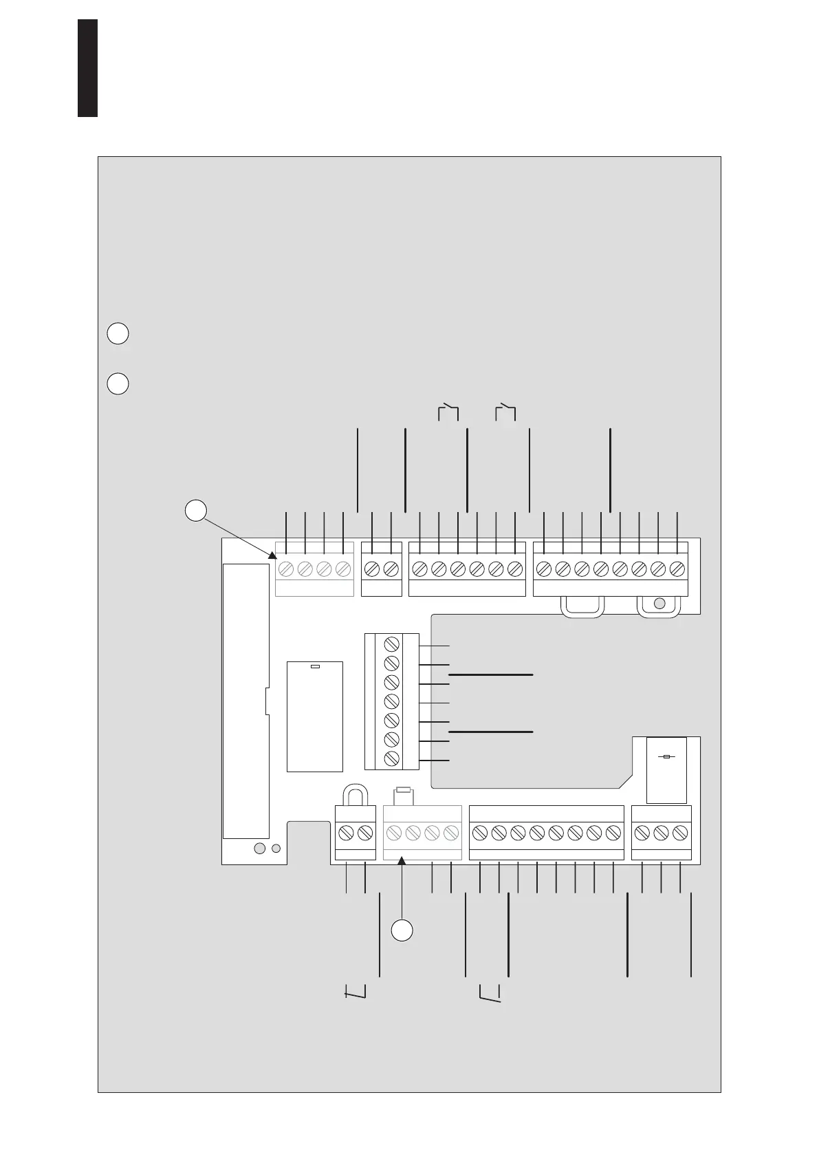
6. Connecting Accessories
1. Connect the connection lines to the plugs and insert the plugs into the terminal board.
The maximum overall load on terminals 1, 1G and 3 is 1.5 A.
The maximum cable length when using J-Y(ST)Y 0.8 mm is 30 m.
6.1 Terminal Assignment
Terminal included in the DCW
Upgrade Card scope of delivery.
Terminal included in the Fire Protection
Upgrade Card scope of delivery.
0 V
B
A
8 – 24 V DC/AC + 5%
+ 24 V
+ 24 V
Signal input
0 V
+ 24 V
COM
Locking device relay
max. 1 A / 48 V DC/AC
NO
NC
0 V
Locking device feedback
0 V
+ 24 V
Signal input
0 V
0 V
+ 24 V
0 V
Signal input
0 V
Partial open
Permanent open
Output
Automatic
Off
NC
NO
max. 1 A / 48 V DC/AC COM
0 V
Signal input
Test output
+ 24 V
0 V
Signal input
Test output
+ 24 V
0 V
Night/Bank
Deactivation of
drive function
Smoke
detector
Night/Bank
Program
switch
Status
relay
External
pulse
Internal
pulse
Safety sensor
on hinge side
Safety sensor on
opposite hinge side
DCW
1
1
2
2
ED 100, ED 250
26 DORMA

Other manuals for Dorma ED 250

Related product manuals