EasyManua.ls Logo

Dorma ED800 J - Auxiliary Power Output; Powering Accessories

Dorma ED800 J
28 pages
Print Icon
To Next Page IconTo Next Page
To Next Page IconTo Next Page
To Previous Page IconTo Previous Page
To Previous Page IconTo Previous Page
Loading...
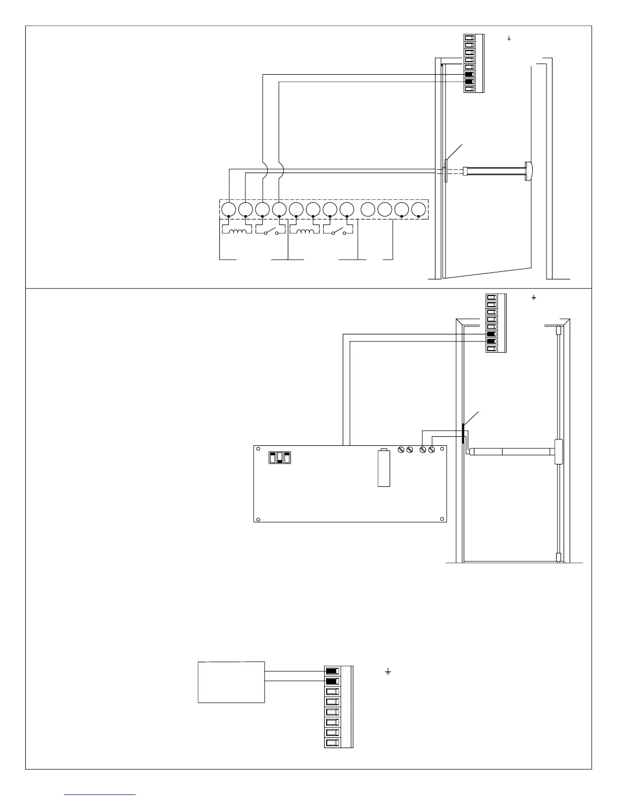
Refer to PS501 Installation Instructions for complete wiring information.
AUXILIARY POWER OUTPUT
The ED 800 is equipped with an auxiliary power output terminal which can be used to power
accessories such as electric strikes or radio frequency receivers. This terminal provides a
nominal 12 Volts DC filtered unregulated power source. The voltage range is from 10 to 25 volts
at 500 milliamps.
More than one accessory can be powered by the auxiliary power output
terminal, however the combined power draw can not exceed 500 milliamps.
ED800-25
ED800
12 VDC
ACCESSORY
ED800
BUSY SWING (SAFETY)
GROUND
NC
C
VESTIBULE
+12VDC
OPEN TRIGGER
123 645 7
8
ES-105
ES5000 SERIES
INPUT B
FIRE
CONTACT
-
(2X) 16AMP SURGE, .2 SEC.
(2X) 24VDC, 1AMP
PS 501 POWER SUPPLY
24VDC
OUTPUTS
A
+-
B
+
CONTACT
INPUT A
ADJUSTMENT
DELAY
FIRE
12
CONTACT
DRY
3
4
5
INPUT
OUTPUT B
120 VAC
DIP SWITCH
OUTPUT A
8
DRY
CONTACT
6
7
OFF
ON
INPUT
POWER
TRANSFER
EXIT DEVICE
Typical wiring diagram for the ED800 with
PS501 Power Supply and ES5000 or ES9000
Exit Device.
BUSY SWING (SAFETY)
OPEN TRIGGER
1
VESTIBULE
C
467
NC
8
532
+12VDC
GROUND
-
+
NO
NO
+12VDC
8
OPEN TRIGGER
BUSY SWING (SAFETY)
NO
C
NC
VESTIBULE
GROUND
275634
12
Refer to ES100 Installation Instructions for complete wiring information.
ES100
POWER SUPPLY
(+)
TURN OFF 120 VAC POWER BEFORE
MAKING ANY CONNECTIONS OR SERVICE.
(-)
ZONE 1
OUTPUT
TERMINALS
24 VDC
(+)
CONTROL
SWITCH
(IN)
1234
(+)(-)
ZONE 2
24 VDC
TERMINALS
OUTPUT
(+)
SWITCH
CONTROL
(IN)
5678
CONNECTIONS
NO
10911
ES8000
EXIT DEVICE
Typical wiring diagram for the ED 800 with ES100
Power Supply and ES8000 exit device.
1
08102710 05/07
(ES5000 MANUFACTURED AFTER 5/06)
ES9000 SERIES
PS501
POWER SUPPLY
TURN OFF 120 VAC POWER BEFORE
MAKING ANY CONNECTIONS OR SERVICE.
ED800
TRANSFER
POWER
ES-105

Related product manuals