EasyManua.ls Logo

DriSteem XTP 003 - Page 33

DriSteem XTP 003
68 pages
Print Icon
To Next Page IconTo Next Page
To Next Page IconTo Next Page
To Previous Page IconTo Previous Page
To Previous Page IconTo Previous Page
Loading...
29
XT SERIES INSTALLATION, OPERATION, AND MAINTENANCE MANUAL
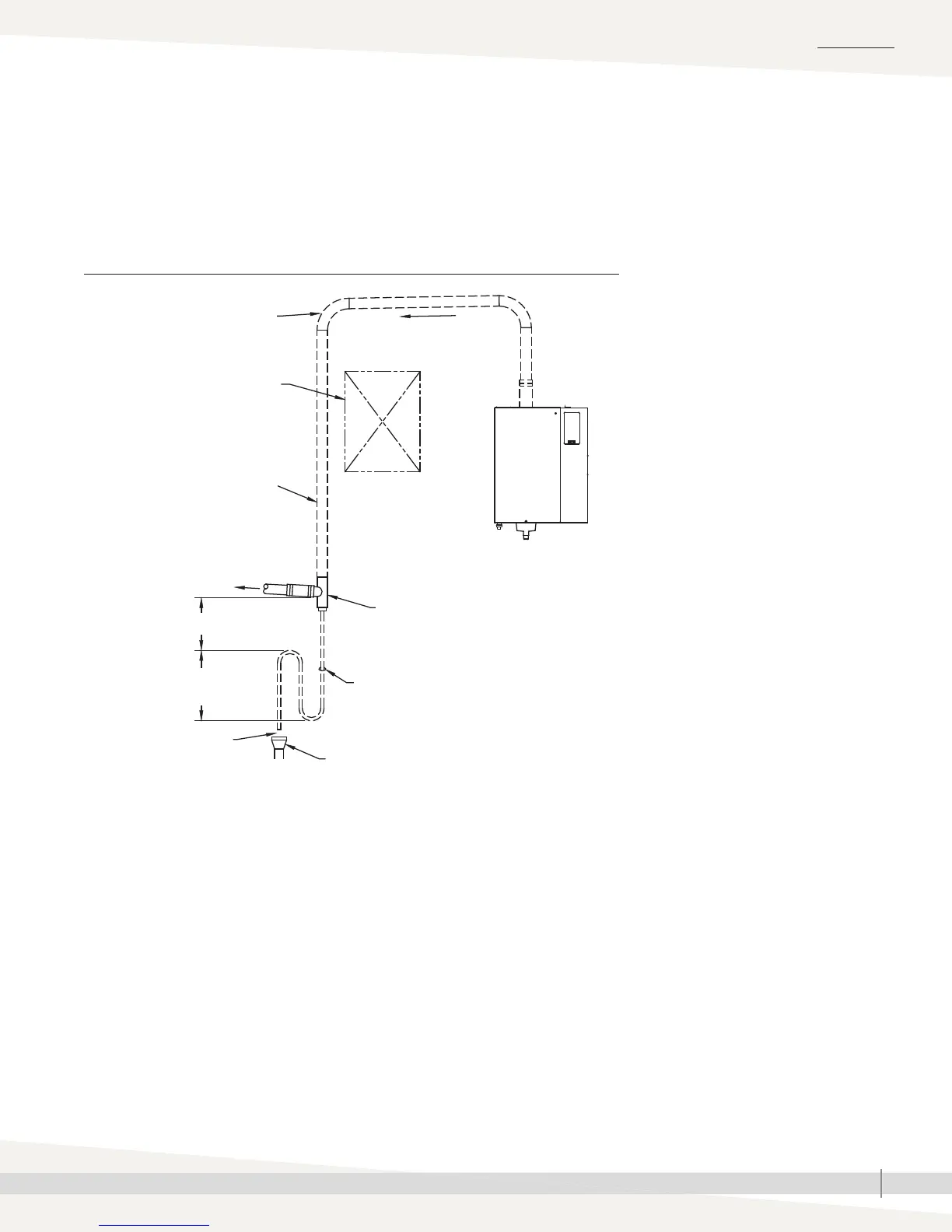
Drip tee installation
Install a drip tee as shown below when the humidifi er is mounted higher than
the dispersion assembly, when interconnecting hose or tubing needs to go over
an obstruction, or when interconnecting piping runs are long.
90° long sweep or two 45° elbows
Obstruction
Insulate tubing to reduce steam loss
To dispersion assembly
6" (150 mm) recommended
8" (200 mm) minimum
1" (25 mm) air gap
Open funnel or fl oor drain. See fi rst note below.
3/4" (DN20)
Tubing drip tee, by installer (see Part No. in
Table 61-1)
Pitch
XT Series humidifi er
Notes:
Locate air gap only in spaces with adequate temperature and air movement to absorb fl ash
steam; otherwise, condensation may form on nearby surfaces. Refer to governing codes for
drain pipe size and maximum discharge water temperature.
Support steam hose for its full length so there are no sags or low spots.
Dashed lines indicate provided by installer.
mc_062810_0645-XT
OM-7695
FIGURE 29-1: DRIP TEE INSTALLATION
INSTALLATION
Dispersion:

Related product manuals