EasyManua.ls Logo

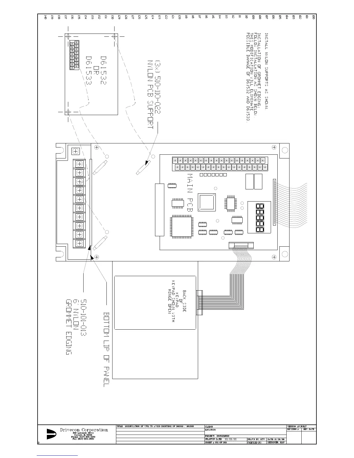
Drivecon VF61 - D61532;D61533 Mounting Illustration

Default Icon
36 pages
Print Icon
To Next Page IconTo Next Page
To Next Page IconTo Next Page
To Previous Page IconTo Previous Page
To Previous Page IconTo Previous Page
Loading...

Other manuals for Drivecon VF61