EasyManua.ls Logo

Dunkirk PVSB - Wiring Diagrams; Intermittent Ignition

Dunkirk PVSB
28 pages
Print Icon
To Next Page IconTo Next Page
To Next Page IconTo Next Page
To Previous Page IconTo Previous Page
To Previous Page IconTo Previous Page
Loading...
i
15 7/i OH2,/I _ i
PO¢,'E_ BK
SUPPL
NEUT --
ov'£ cI R NI P_O EC]£
{}15C NNEC
i / ......
',(}} ................
OPI_O_',A[ WF 2U 24
F EX:::t
NOTE:TE2MN-_ NO "_ Af'r;r'hR_: ONY
)ld V'AIq r< Ir_ED[_ MOIIt[5 WrH
M/,N'JAL F_ED PUSH BUWON
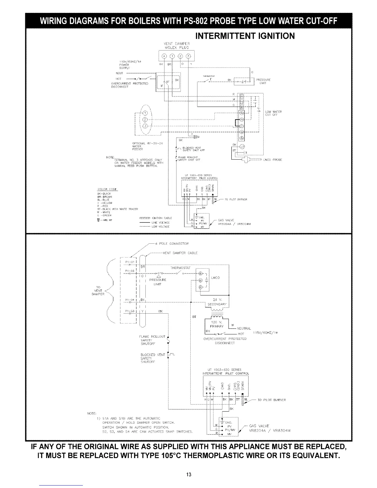
INTERMITTENT IGNITION
vl[iqT DAMPER
M©LEX PLUG
i
<:'i >i
_, ] o '
i ............ ] o
.... i ,. t _K
L _...................
Y
_4 I(X ! CON/4!:(: Ol_
//
\N
SHUTOFF
BL)CKED 4ENT li_L
SAFEF!'
SHIJTOF_ ¸
15V/6OHZi i ¢,
OVERCIJRREN] PROIEC] ED
/;ISC()NNECT
JT 1OO3-620 SERIES
_TERMI_TENT PLOT CONTROL
..... _: ]
O_ERAHO/_ / HOLD DAMPER OPEN W CI4 i ::: ©ND
J
IF ANY OF THE ORIGINAL WIRE AS SUPPLIED WITH THIS APPLIANCE MUST BE REPLACED,
IT MUST BE REPLACED WITH TYPE 105°C THERMOPLASTIC WIRE OR ITS EQUIVALENT.
13

Related product manuals