EasyManua.ls Logo

Dunkirk PVSB - Page 16

Dunkirk PVSB
28 pages
Print Icon
To Next Page IconTo Next Page
To Next Page IconTo Next Page
To Previous Page IconTo Previous Page
To Previous Page IconTo Previous Page
Loading...
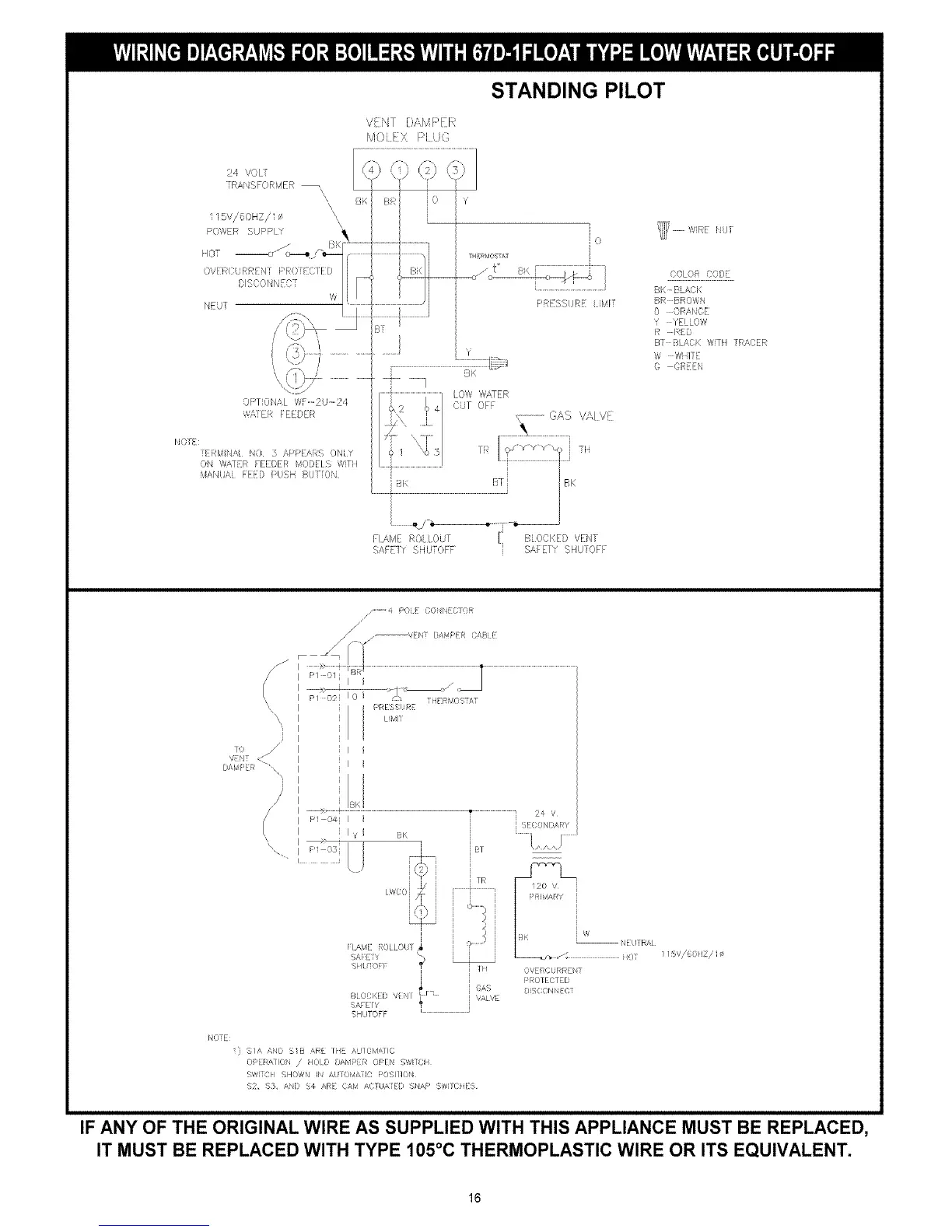
24 _OL1
TRAHSFORMER _\
" Bi<
1 15Vi@HZ/1 r,_ '\,
\
POWER SUPPM
lOT
OVER( U RI:_E'\! PROYEC El
01SCOk qECT
W
NEUT
I,lO :
fERb'INA NO 3 APPEARS Ob_ Y
ON WATER FEEDER MODEl> WiTII
MANbAt FEE{) PUSH BtlTION
VE:i\I7 )/¢4 Y'{ I:,
I/0i E:X /:i tJ(,
STANDING PILOT
PRES _URE /IMIi
1,
BK
WiRE NUT
COLOR CODE
BK BLACK
BR BROW!N
0 Or#Ai,,OE
Y YELOW
_< Ik<ED
BT B_ACK WFH TRACER
W WIE
O GREEN
FLAME ROILOLIT BLOCKED VENT
.<;AFE]Y SHUF)F: SAFELY SHU OSF
, +i PX)L[ COl N(:(:} OR
/
//
i /
TO /_
'/Nl <"
I)/kIP R
PI 02i I0 I _ THFRMOSTAT
PRESSt.iR£
NOTE:
i} SIA AND SI[J ARE THE AU}OM£]IC
Ol EI_£10N / I/(}LI3 DAMPER OPEN SWFCI_
_Wi[C/i Siq©WN IN A_f[(>MATiC POSIHON
$2, $3, AND $4- ARE CAM A¢_UAilED SI/AP SWI/CHES
OVERCIiRRE} T
PROTECED
DIS/,: ( N qEC i
1 / 5V/ iO Ei'I ¢
IF ANY OF THE ORIGINAL WIRE AS SUPPLIED WITH THIS APPLIANCE MUST BE REPLACED,
IT MUST BE REPLACED WITH TYPE 105°C THERMOPLASTIC WIRE OR ITS EQUIVALENT.
16

Related product manuals