EasyManua.ls Logo

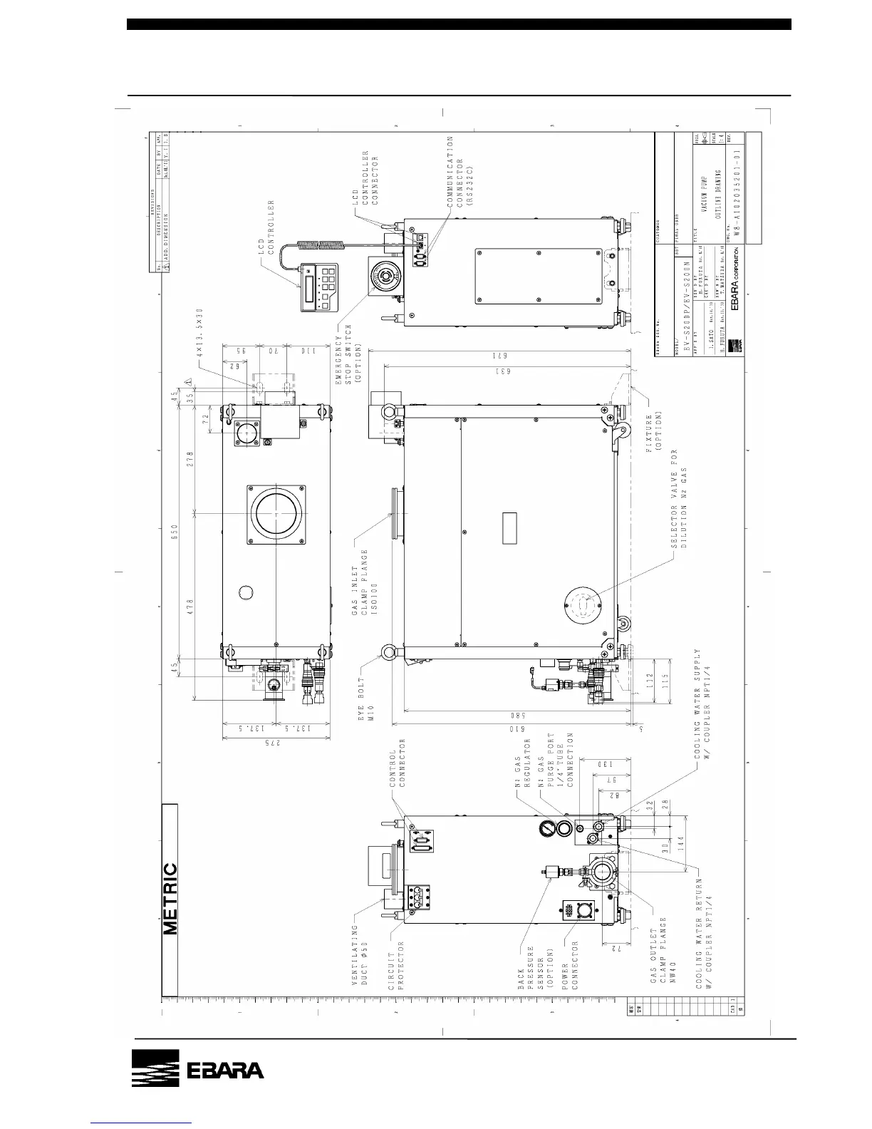
EBARA EV-S100N - Model Ev-S200 P; Ev-S 200 N Outline Drawing(Option)

EBARA EV-S100N
113 pages
Print Icon
To Next Page IconTo Next Page
To Next Page IconTo Next Page
To Previous Page IconTo Previous Page
To Previous Page IconTo Previous Page
Loading...
P.29
MODEL EV-S200P / EV-S 200N OUTLINE DRAWING(OPTION)
PM10U
EBARA
CORPORATION

Table of Contents

Related product manuals