EasyManua.ls Logo

EBARA EV-S200P - Power Supply Wiring

EBARA EV-S200P
113 pages
Print Icon
To Next Page IconTo Next Page
To Next Page IconTo Next Page
To Previous Page IconTo Previous Page
To Previous Page IconTo Previous Page
Loading...
P.46
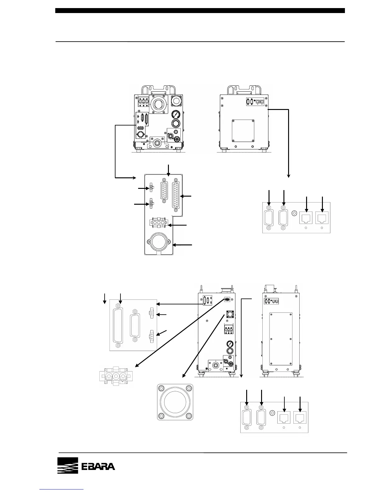
4.3.1 Power Supply Wiring
Fig4.3.1,2,3 show the power supply connector and a control singnal connector
position on the control panel.
MODEL EV-S20
Fig 4.3.1 Power Supply and Control Signal connects position
MODEL EV-S50
Fig 4.3.2 Power Supply and Control Signal connects position
EXT.IL
LAN
CN-Z
CN-Y
CN-C
Power supply for
accessories
Power supply receptacle
COM1
LCD1
COM2
LCD2
Power supply receptacle
CN-C
(Power supply for
accessories)
COM1
LCD1
COM2
LCD2
CN-Y CN-Z
EXT.IL
LAN
PM10U
EBARA
CORPORATION

Table of Contents

Related product manuals