EasyManua.ls Logo

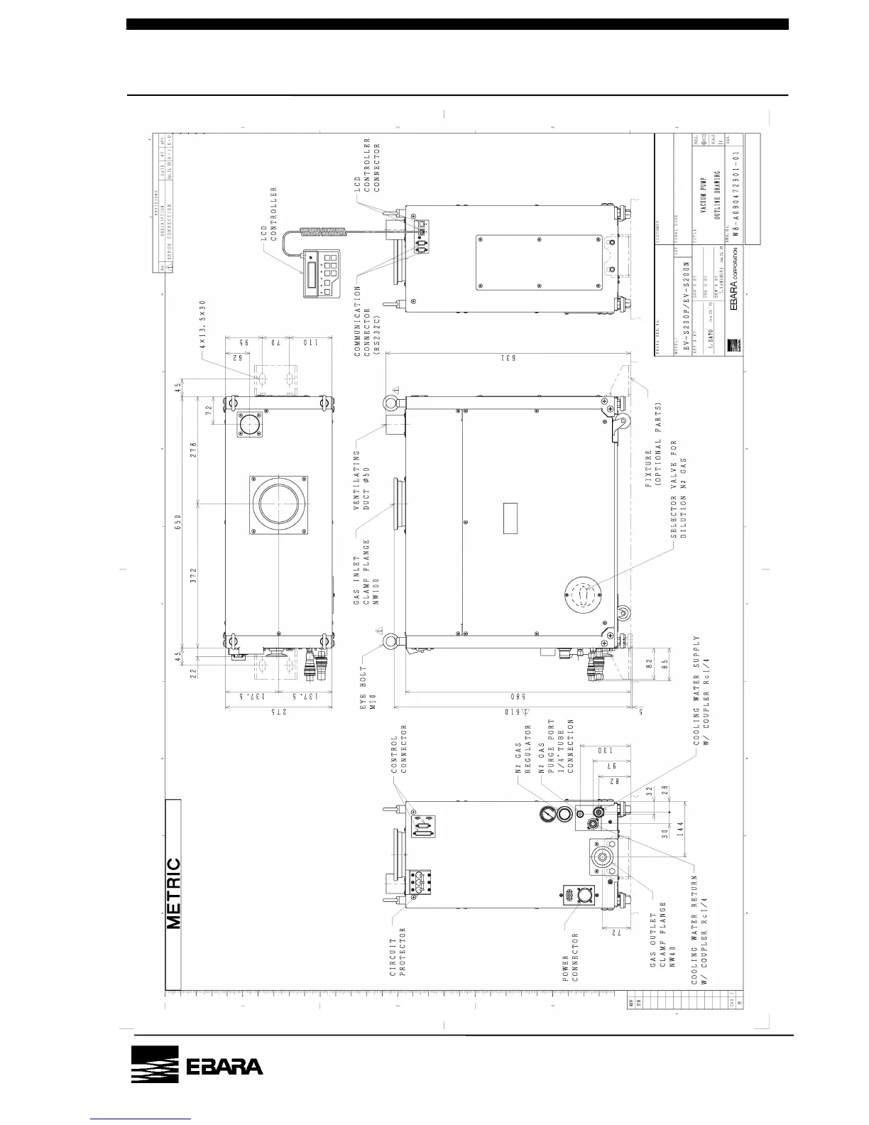
EBARA EV-S20P - Model Ev-S200 P; Ev-S 200 N Outline Drawing

EBARA EV-S20P
113 pages
Print Icon
To Next Page IconTo Next Page
To Next Page IconTo Next Page
To Previous Page IconTo Previous Page
To Previous Page IconTo Previous Page
Loading...
P.21
MODEL EV-S200P / EV-S 200N OUTLINE DRAWING
PM10U
EBARA
CORPORATION

Table of Contents

Related product manuals