EasyManua.ls Logo

Effekta EPS Series - Page 19

Effekta EPS Series
44 pages
Print Icon
To Next Page IconTo Next Page
To Next Page IconTo Next Page
To Previous Page IconTo Previous Page
To Previous Page IconTo Previous Page
Loading...
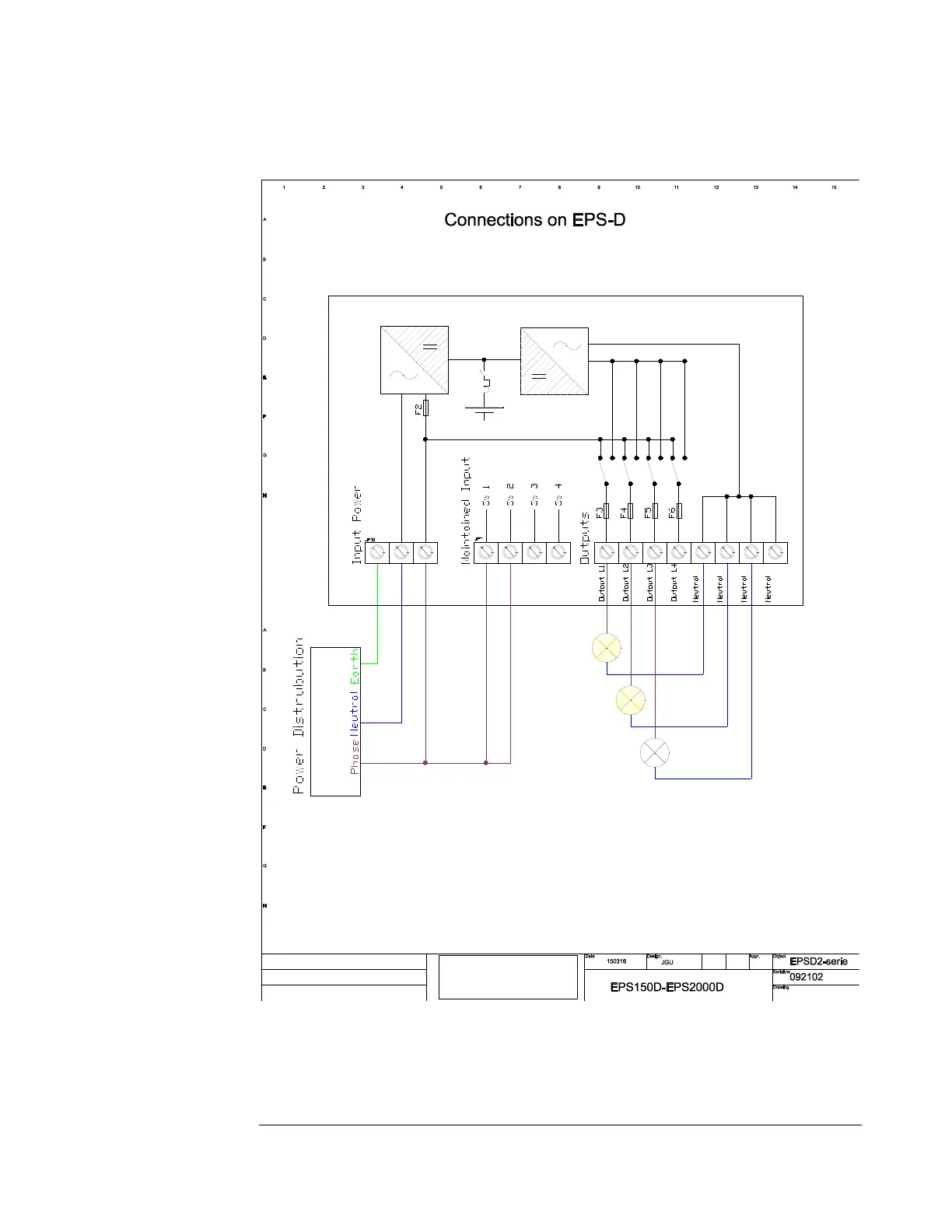
U S E R M A N U A L E P S - D
Technical specifications and data are subject to change without any prior notice.
15
Example A-2:
Output 1: Always activated.
Output 2: Always activated.
Output 3: Deactivated. Activates at mains failure, tests and 24V inputs.