EasyManua.ls Logo

Electrolux W565H - Central Payment System (2 B)

Electrolux W565H
120 pages
Print Icon
To Next Page IconTo Next Page
To Next Page IconTo Next Page
To Previous Page IconTo Previous Page
To Previous Page IconTo Previous Page
Loading...
I/Omodules
59
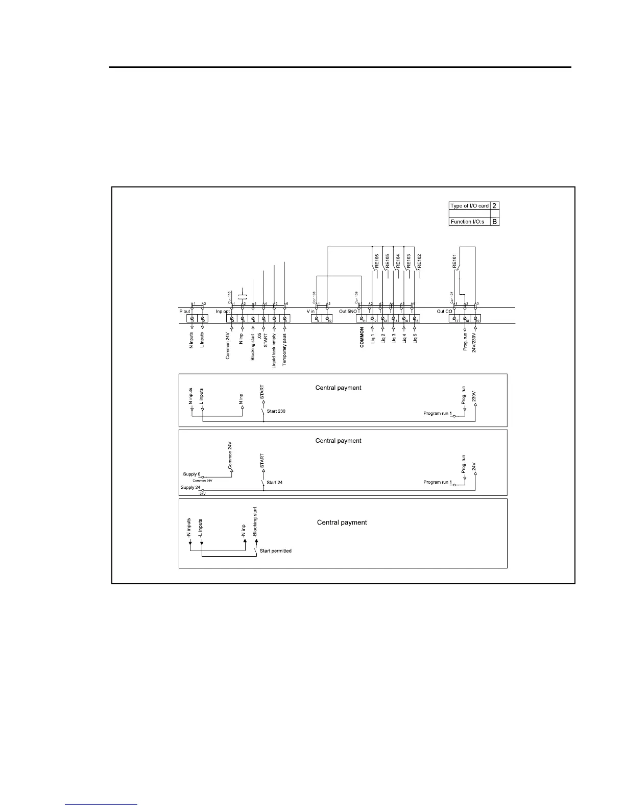
12.3.2Centralpayment(2B)
Tostartthemachinefromacentralpaymentsystem,thepaymentsystemmusttransmitastart
pulsetothemachine.Thestartpulsecanbeeither230Vor24V.Inordertoreceiveafeedback
signaloncethemachinehasstarted,230Vor24Vmustbeconnectedtoconnection19.The
feedbacksignalonconnection18remainsactive(high)duringtheentireprogram.
70
g.6316A

Table of Contents

Other manuals for Electrolux W565H

Related product manuals