EasyManua.ls Logo

Electronics International CGR-30C - Page 26

Electronics International CGR-30C
68 pages
Print Icon
To Next Page IconTo Next Page
To Next Page IconTo Next Page
To Previous Page IconTo Previous Page
To Previous Page IconTo Previous Page
Loading...
19
12/29/93
R.R.
R.R.
None
(IN)
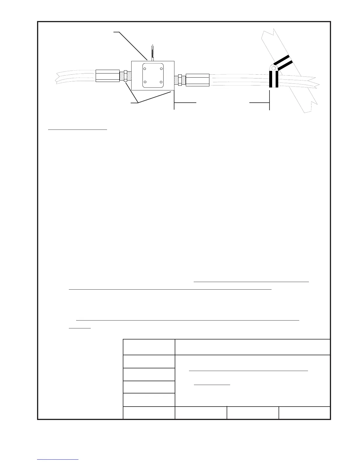
(OUT)
From the Fuel Pump
(or Fuel Filter on a
gravity feed system)
To the Carburetor
(or Fuel Servo)
Fuel Flow Transducer
Adapter, (1/4" NPT to Fuel Hose)
6" Maximum from
support or fitting.
Mounting Procedure:
1. Find a convenient location within 6" of a hose support or fitting and away from any hot exhaust
pipes to suspend the Fuel Flow Transducer. The hose support or fitting may be on the input or
output line of the Flow Transducer and the support may be to an adjacent hose.
2. Remove the fuel hose which goes from the Fuel Pump (or the Fuel Filter on a gravity feed system) to
the Carburetor (or Fuel Servo).
3. Purchase two new hoses: one to be used from the fuel pump (or the Fuel Filter) to the Fuel Flow
Transducer and the other to be used from the Fuel Flow Transducer to the carburetor (or Fuel
Servo). There must be flexible hose in and out of the Transducer. The hoses must meet TSO-
C53a Type C or D FAA specifications. The new hoses must be the same size as the current
hoses in the aircraft. Sources of fittings and fabricated hoses are:
4. Mount the Fuel Flow Transducer in the fuel line.
You must use the FT-90 (Gold Cube) Fuel
Flow Transducer on a gravity feed system or for any engine over 350 H.P. If the Trans-
ducer is mounted within 6" of an exhaust pipe, the Flow Transducer must be wrapped
with Fire Sleeving.
5.
Read the Installation Instructions for important installation consider-Read the Installation Instructions for important installation consider-
Read the Installation Instructions for important installation consider-Read the Installation Instructions for important installation consider-
Read the Installation Instructions for important installation consider-
ations.ations.
ations.ations.
ations.
D: 7/2/02
12299321229932
12299321229932
1229932
Sacramento Sky Ranch Inc.
(916) 421-7672
Fax: (916) 421-5719
Varga Enterprises Inc.
(602) 963-6936
FAX: (602) 899-0324
OR
OR
Hoses Unlimited Inc.
(510) 483-8521
Fax: (510) 483-8524
Installation of a Fuel Flow Transducer suspended in the fuel
line from the fuel pump to the carburetor or fuel servo.
Note: Not applicable for a fuel-injected engine with a fuel
return line (see D/N 0415941).
Drawn By:
Approved By:
Scale:
Material:
Next
Assembly:
P/N:
Date: Rev:
D/N:
Electronics International Inc.Electronics International Inc.
Electronics International Inc.Electronics International Inc.
Electronics International Inc.

Table of Contents

Related product manuals