EasyManua.ls Logo

Electronics International CGR-30C - Page 27

Electronics International CGR-30C
68 pages
Print Icon
To Next Page IconTo Next Page
To Next Page IconTo Next Page
To Previous Page IconTo Previous Page
To Previous Page IconTo Previous Page
Loading...
20
12/29/93
12299311229931
12299311229931
1229931
R.R.
R.R.
None
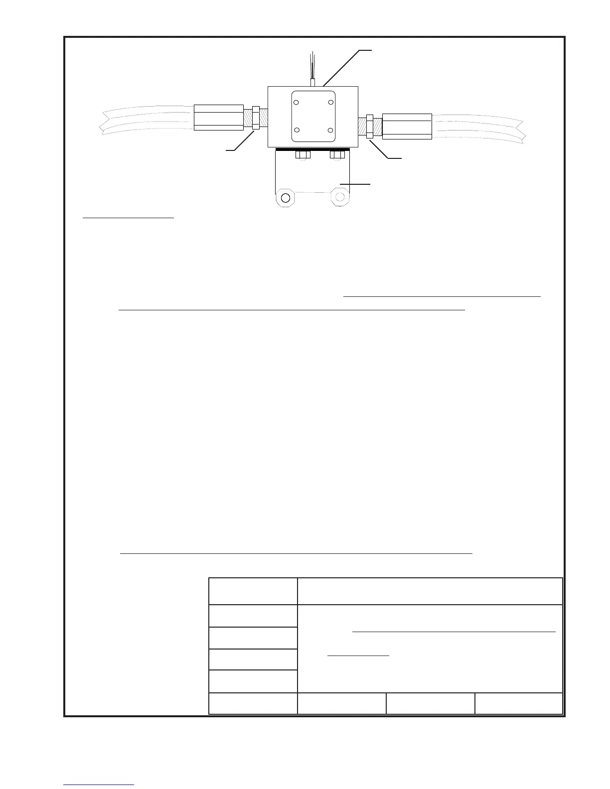
Installation of a Fuel Flow Transducer on the Firewall and in
the fuel line from the fuel pump to the carburetor or fuel servo.
Note: Not applicable for a fuel-injected engine with a fuel
return line (see D/N 0415941).
D: 7/2/02
(OUT)
(IN)
Fuel Flow Transducer
Bracket
To the Carburetor
(or Fuel Servo)
Adapter, (1/4 NPT to Fuel Hose)
Adapter, (1/4" NPT to Fuel Hose)
From the Fuel Pump
(or Fuel Filter on a
gravity feed system).
Mounting Procedure:
1. Find a convenient location on the firewall (away from any hot exhaust pipes) and mount a bracket
for the Fuel Flow Transducer. Check both sides of the firewall for clearance before drilling any
holes.
2. Mount the Fuel Flow Transducer onto the Bracket. You must use the FT-90 (Gold Cube) Fuel
Flow Transducer on a gravity feed system or for any engine over 350 H.P. If the Trans-
ducer is mounted within 6" of an exhaust pipe, the Flow Transducer must be wrapped with
Fire Sleeving.
3. Remove the fuel hose which goes from the Fuel Pump (or the Fuel Filter on a gravity feed system) to
the Carburetor (or Fuel Servo).
4. Purchase two new hoses, one to be used from the fuel pump (or the Fuel Filter) to the Fuel Flow
Transducer (making provisions for the fuel pressure transducer as necessary) and the other to be used
from the Fuel Flow Transducer to the carburetor (or Fuel Servo). There must be flexible hose in
and out of the Transducer. The hoses must meet TSO-C53a Type C or D FAA specifications.
The new hoses must be the same size as the current hoses in the aircraft. Sources of fittings
and fabricated hoses are:
Sacramento Sky Ranch Inc.
(916) 421-7672
Fax: (916) 421-5719
Varga Enterprises Inc.
(602) 963-6936
FAX: (602) 899-0324
OROR
OROR
OR
5.
Read the Installation Instructions for important installation considerations.
OROR
OROR
OR
Hoses Unlimited Inc.
(510) 483-8521
Fax: (510) 483-8524
Drawn By:
Approved By:
Scale:
Material:
Next
Assembly:
P/N:
Date: Rev:
D/N:
Electronics International Inc.Electronics International Inc.
Electronics International Inc.Electronics International Inc.
Electronics International Inc.

Table of Contents

Related product manuals