EasyManua.ls Logo

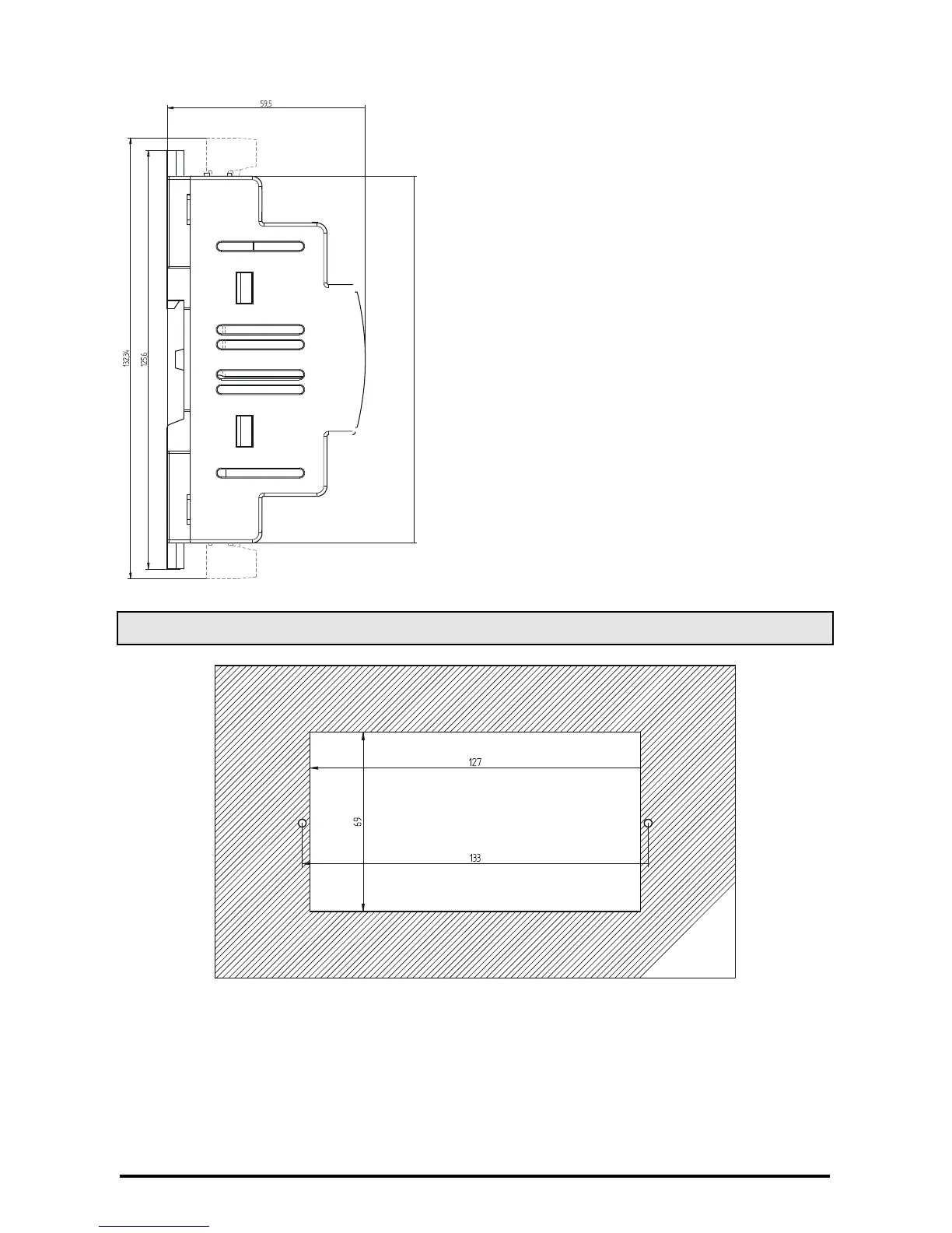
Emerson XC1015D - VG810 dimensions and mounting

Emerson XC1015D
66 pages
Print Icon
To Next Page IconTo Next Page
To Next Page IconTo Next Page
To Previous Page IconTo Previous Page
To Previous Page IconTo Previous Page
Loading...
1592021021 XC1008-1011-1015D GB A5 r.1.5A 12.10.2009 XC1008-1011-1015D 55/66
12.2 VG810 dimensions and mounting

Table of Contents

Related product manuals