EasyManua.ls Logo

Entrematic Ditec DAS200HD - Fastening with Anchoring Brackets

Entrematic Ditec DAS200HD
56 pages
Print Icon
To Next Page IconTo Next Page
To Next Page IconTo Next Page
To Previous Page IconTo Previous Page
To Previous Page IconTo Previous Page
Loading...
10
IP2266EN
EN
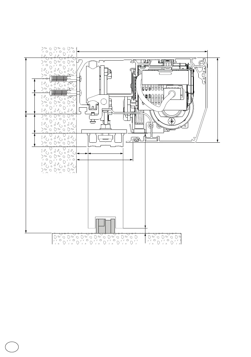
Unless otherwise specified, all measurements are expressed in millimetres (mm).
The figure shows the measurements for fastening the automation to the wall, considering that the
automation door wings are made using profiles not manufactured by us.
If the door wings are made with DITEC profiles in the ALU/PAM series: refer to the measurements
given in the relative manuals.
Drill a hole in the box using the reference line on the back and fasten it with M6 Ø12 steel plugs
or 6MA screws (not supplied).
Distribute the fixing points approx. every 400 mm.
Make sure the box is positioned evenly, with its back surface perpendicular to the floor and not
deformed lengthwise by the shape of the wall. If the wall is not straight and smooth, iron plates
must be fixed to it and then the box in turn fixed to the plates.
WARNING: the fastening of the box to the wall must be sufficient to sustain the door wing weight.
WARNING: do not damage the wheel guide during assembly. Clean the guide thoroughly before
installing the wings.
6. Fastening of box using supplied wing ancho-
ring brackets
80H
HM= H-37
19 27
2030
10
120
185
50
16
80

Related product manuals