EasyManua.ls Logo

Entrematic Ditec DAS200HD - Example with DAS35 M8

Entrematic Ditec DAS200HD
56 pages
Print Icon
To Next Page IconTo Next Page
To Next Page IconTo Next Page
To Previous Page IconTo Previous Page
To Previous Page IconTo Previous Page
Loading...
120
185
80
31 27
2030
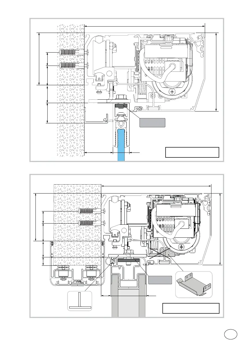
DAS18M8
44 25
16 60
120
185
80
14 27
2030
DAS35M8
13
IP2266EN
EN
6.3 Example with DAS35M8
DAS200-AC4870
DAS200-PAMH60

Related product manuals