EasyManua.ls Logo

ermaf TR 75 - Page 13

ermaf TR 75
28 pages
Print Icon
To Next Page IconTo Next Page
To Next Page IconTo Next Page
To Previous Page IconTo Previous Page
To Previous Page IconTo Previous Page
Loading...
GB-13
D
GB
F
NL
I
E
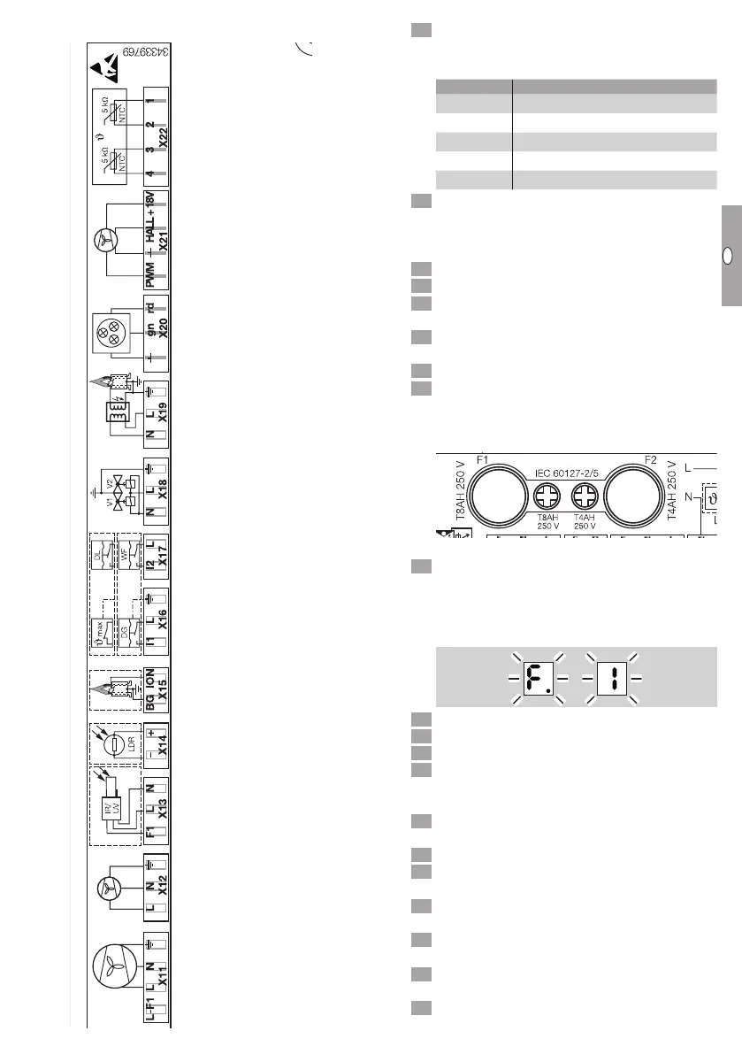
Internal connection diagram
LN LN L
LT LV
+T
–+V
mA
V12
LLiN
12 +
0 V
D – 49018 Osnabrück, Germany
ACU
Press the RESET button to reset. The unit then
reverts to the last operating mode selected.
Possible faults
Display Fault type
F
Flame fault
A
Air fault
C
Temperature fault
E
Electronics fault
U
Other possible faults
4 If the burner control unit does not respond even
though all the possible faults have been rectified
as described below, contact your supplier.
? Fault
! Cause
Remedy
? The 7-segment display has gone out despite
the voltage supply being OK?
! Fuse F2 is defective.
Check the fuse contacts.
There is a spare fuse directly next to the fuse
holder.
Important! Fit the correct fuse for 4A.
LN LN L
LT LV
+T
–+V
mA
V12
LLiN
12 +
0 V
D – 49018 Osnabrück, Germany
ACU
? Fault code F. and 1 flash alternately?
On burner start-up, the burner control unit has
not detected a flame during the safety time. Sev-
eral automatic start-up attempts will be com-
pleted if a restart has been programmed.
! Inadequate inlet pressure available.
Check the inlet pressure.
! Ignition is not working properly.
Check the connection of the ignition cables for
damage or moisture. The spark plug must be
fitted correctly.
Check the ignition spark acoustically during the
3-second ignition time from the burner fan side.
Clean the ignition electrode.
Check the ignition transformer and replace it if
necessary.
! Poor flame signal due to incorrect burner adjust-
ment.
Readjust the CO
2
value, see page9 (Adjust-
ing the heater).
! Poor flame signal due to dirty or badly connected
ionization electrode.
Check the ionization electrode and clean it with
fine abrasive paper if necessary.
Main fan
Burner fan
230 V
Not used
Not used
Ionization
WT Klixon
(temperature limiter)
Pressure switch for air
(vane not used)
Valves
Ignition
Status indicator
Burner fan
eSTB2
(temperature sensor)

Related product manuals